Maison neuve à
Beaumont-le-Roger (27170) Référence : EL2339922_1

Prix du projet : Maison avec Terrain

prix 260 300 €

  • 6 pièces
  • 4 chambres
  • Surface maison 117 m2

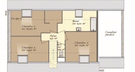
Maison de 6 pièces (117 m²) à vendre à Beaumont-le-Roger
IDÉALEMENT SITUÉE - MAISON 6 PIÈCES NEUVE
À deux pas d'Évreux, votre agence Maisons Balency Boos est ravie de vous présenter à vendre, idéalement située dans Beaumont-le-Roger (27170), cette maison de 6 pièces de plain-pied de 117 m². Son intérieur propose quatre chambres, une cuisine et deux salles de bains.
Le terrain de cette maison est de 1 041 m².
La maison est neuve.
La maison se trouve dans un secteur attractif. Quatre établissements scolaires sont implantés à moins de 10 minutes à pied. Côté transports en commun, on trouve deux gares (Beaumont-le-Roger et Serquigny) à moins de 10 minutes en voiture. L'autoroute A28 est accessible à 16 km. Il y a un tennis, quatre commerces, trois boulangeries, deux supermarchés, deux épiceries et un bureau de poste dans les environs. Enfin, le marché Place de l'église anime le quartier.
Elle est à vendre pour la somme de 260 300 €.
Contactez notre agence (LEOVANT Aurélien : 02-35-80-66-66) pour toute question sur le bien. Concrétisez vos projets immobiliers avec Maisons Balency Boos.

Annonce proposée par un Agent Commercial Partenaire.

Mentions légales

Terrain proposé par un partenaire foncier selon disponibilités et autorisation de publicité au prix de 42 800 €. Hors droit d'enregistrement et frais de notaire. Terrain + Maison proposés au prix de 217 500 € (Hors branchements et raccordements, papiers peints, peintures, revêtement de sol dans les chambres. Tarif modifiable sans préavis). Etiquette énergie : A. Différents modèles disponibles pour ce terrain. Assurances et garanties du constructeur (RC professionnelle, décennale, dommage ouvrage, garantie de remboursement de l'acompte, livraison à prix et délai convenu) : https://www.maisons-balency.fr/informations-legales/. HEXAOM Services est enregistré auprès de l'ORIAS en tant que Courtier en financement, Niveau 1, sous le numéro 14001345.

Contactez l'agence de Boos

02 35 80 66 66

    * Champs obligatoires

    Vos informations sont traitées par HEXAOM et transmises à un conseiller commercial qui vous contactera afin de répondre à votre demande. Les plans et images présentés sur notre site sont la propriété d’HEXAOM et ne peuvent pas être reproduits sans son accord. Pour retrouver notre politique de protection des données personnelles et exercer vos droits conformément à la « loi informatique et liberté » cliquez-ici.