Maison neuve à
Beaumont-sur-Oise
(95260) Référence :
AF2246882_8
Prix du projet : Maison avec Terrain
prix 470 000 €
- 7 pièces
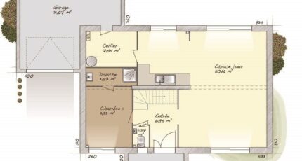
- 4 chambres
- Surface maison 160 m2
Maison de 7 pièces (160 m²) à vendre à Beaumont-sur-Oise
PROCHE DE SAINT-DENIS - MAISON 7 PIÈCES NEUVE
En vente : à deux pas du Transilien H (gare de Persan-Beaumont, 40 min de Paris), à Beaumont-sur-Oise (95260), nous sommes ravis de vous proposer cette maison de 7 pièces de 160 m². Son intérieur offre quatre chambres, une cuisine et deux salles de bains.
Le terrain de la propriété est de 1 050 m².
Cette maison possède 2 niveaux. Elle est neuve.
Il y a l'École Primaire la Fontaine Bleue et le Lycée Polyvalent Evariste Galois à moins de 10 minutes à pied. Côté transports en commun, on trouve 17 gares à moins de 10 minutes en voiture. Il y a une bibliothèque et un supermarché à proximité de la maison.
Son prix de vente est de 510 000 €.
N'hésitez pas à prendre contact avec Antoine FLIPPE (07-82-59-37-75) pour toute information sur la maison.
Annonce proposée par un Agent Commercial Partenaire.
Mentions légales
Terrain proposé par un partenaire foncier selon disponibilités et autorisation de publicité au prix de 170 000 €. Hors droit d'enregistrement et frais de notaire. Maison proposée, avec un contrat de construction de maison individuelle, dans le cadre de la loi du 19/12/1990, au prix de 300 000 € (Hors branchements et raccordements, papiers peints, peintures, revêtement de sol dans les chambres, qui sont chiffrés dans les travaux qui restent à charge du client. Tarif modifiable sans préavis). Étiquette énergie : A. Différents modèles disponibles pour ce terrain. Assurances et garanties du constructeur comprises (RC professionnelle, décennale, dommage ouvrage).Agence Maisons Balency de Baillet-en-France (95560)
- Téléphone :
- 01 34 46 05 23
- Adressse :
- 81 rue de Paris
95560 Baillet-en-France, France
