Maison neuve à
Beaumont-sur-Oise
(95260) Référence :
CT2346575_1
Prix du projet : Maison avec Terrain
prix 399 700 €
- 6 pièces
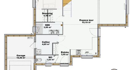
- 5 chambres
- Surface maison 114 m2
VENTE d'une maison T6 (114 m²) à Beaumont-sur-Oise
CENTRE-VILLE - MAISON 6 PIÈCES NEUVE
À deux pas du Transilien H (gare de Persan-Beaumont, 40 min de Paris), nous vous proposons à vendre, à Beaumont-sur-Oise (95260), en centre-ville, cette maison de 6 pièces de 114 m² avec vue sur jardin.
Cette maison comporte 2 niveaux. Elle offre cinq chambres, une cuisine et deux salles de bains. Cette maison est neuve.
Le terrain du bien s'étend sur 630 m².
L'École Primaire la Fontaine Bleue et le Lycée Polyvalent Evariste Galois sont implantés à moins de 10 minutes à pied. Côté transports, il y a 17 gares à moins de 10 minutes en voiture. Il y a une bibliothèque et un supermarché à quelques minutes de la maison.
Elle est à vendre pour la somme de 399 700 €.
N'hésitez pas à prendre contact avec notre agence (Christophe TALAMONI : 06-49-55-08-27) pour tout renseignement sur la maison, sur les démarches à suivre ou sur les modalités de vente. Maisons Balency Baillet-en-France est là pour vous accompagner à toutes les étapes de votre projet.
Annonce proposée par un Agent Commercial Partenaire.
Mentions légales
Terrain proposé par un partenaire foncier selon disponibilités et autorisation de publicité au prix de 190 000 €. Hors droit d'enregistrement et frais de notaire. Terrain + Maison proposés au prix de 399 700 € (Hors branchements et raccordements, papiers peints, peintures, revêtement de sol dans les chambres. Tarif modifiable sans préavis). Etiquette énergie : A. Différents modèles disponibles pour ce terrain. Assurances et garanties du constructeur (RC professionnelle, décennale, dommage ouvrage, garantie de remboursement de l'acompte, livraison à prix et délai convenu) : https://www.maisons-balency.fr/informations-legales/. HEXAOM Services est enregistré auprès de l'ORIAS en tant que Courtier en financement, Niveau 1, sous le numéro 14001345.Agence Maisons Balency de Baillet-en-France (95560)
- Téléphone :
- 01 34 46 05 23
- Adressse :
- 81 rue de Paris
95560 Baillet-en-France, France
