Maison neuve à
Beaumont-sur-Oise
(95260) Référence :
CT2414424_3
Prix du projet : Maison avec Terrain
prix 448 600 €
- 9 pièces
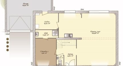
- 4 chambres
- Surface maison 186 m2
VENTE : maison F9 (186 m²) à Beaumont-sur-Oise
IDÉALEMENT SITUÉE - MAISON 9 PIÈCES NEUVE
En vente : proche du Transilien H (gare de Persan-Beaumont, 40 min de Paris), venez découvrir, idéalement située dans Beaumont-sur-Oise (95260), cette maison de 9 pièces de 186 m². Son intérieur compte quatre chambres, une cuisine et deux salles de bains.
Le terrain du bien est de 600 m².
Cette maison comporte 2 niveaux. Elle est neuve.
La maison se trouve dans un quartier prisé. Il y a l'École Primaire la Fontaine Bleue et le Lycée Polyvalent Evariste Galois à moins de 10 minutes à pied. Niveau transports, on trouve 17 gares à moins de 10 minutes en voiture. On trouve une bibliothèque et un supermarché dans les environs.
Elle est proposée à l'achat pour 448 600 €.
N'hésitez pas à prendre contact avec notre agence (Christophe TALAMONI : 06-49-55-08-27) pour toute question sur la maison ou sur les démarches à suivre. Concrétisez vos projets immobiliers avec Maisons Balency Baillet-en-France.
Annonce proposée par un Agent Commercial Partenaire.
Mentions légales
Terrain proposé par un partenaire foncier selon disponibilités et autorisation de publicité au prix de 157 000 €. Hors droit d'enregistrement et frais de notaire. Terrain + Maison proposés au prix de 448 600 € (Hors branchements et raccordements, papiers peints, peintures, revêtement de sol dans les chambres. Tarif modifiable sans préavis). Etiquette énergie : A. Différents modèles disponibles pour ce terrain. Assurances et garanties du constructeur (RC professionnelle, décennale, dommage ouvrage, garantie de remboursement de l'acompte, livraison à prix et délai convenu) : https://www.maisons-balency.fr/informations-legales/. HEXAOM Services est enregistré auprès de l'ORIAS en tant que Courtier en financement, Niveau 1, sous le numéro 14001345.Agence Maisons Balency de Baillet-en-France (95560)
- Téléphone :
- 01 34 46 05 23
- Adressse :
- 81 rue de Paris
95560 Baillet-en-France, France
