Maison neuve à
Bernay (27300) Référence : EL2320317_1

Prix du projet : Maison avec Terrain

prix 357 700 €

  • 7 pièces
  • 4 chambres
  • Surface maison 160 m2

VENTE d'une maison F7 (160 m²) à Bernay
IDÉALEMENT SITUÉE - MAISON 7 PIÈCES NEUVE
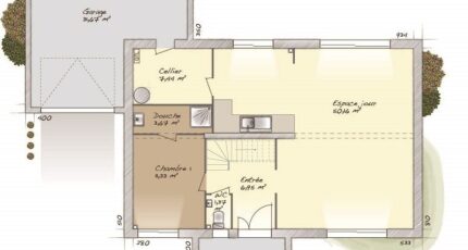
À 45 km de la Manche, Maisons Balency Boos vous présente en vente, idéalement située dans Bernay (27300), cette maison de 7 pièces de 160 m² et de 1 550 m² de terrain. Son intérieur compte quatre chambres, une cuisine et deux salles de bains.
Il s'agit d'une maison de 2 niveaux. Elle est neuve.
La maison se situe dans un quartier attractif. Il y a des établissements scolaires du primaire et du secondaire à moins de 10 minutes à pied, tout comme une structure d'accueil pour la petite enfance. Niveau transports, on trouve la gare Bernay à quelques pas de la maison. Il y a un accès à l'autoroute A28 à 6 km. Il y a une bibliothèque, un bassin de natation, un tennis, des commerces, des boulangeries, des supermarchés, une poissonnerie et un bureau de poste à quelques minutes. Enfin, le marché Place Héon a lieu tous les samedis matin.
Elle est à vendre pour la somme de 357 700 €.
Contactez notre agence (LEOVANT Aurélien : 02-35-80-66-66) pour tout renseignement sur la maison. Maisons Balency Boos est là pour vous accompagner dans tous vos projets immobiliers.

Annonce proposée par un Agent Commercial Partenaire.

Mentions légales

Terrain proposé par un partenaire foncier selon disponibilités et autorisation de publicité au prix de 35 000 €. Hors droit d'enregistrement et frais de notaire. Terrain + Maison proposés au prix de 357 700 € (Hors branchements et raccordements, papiers peints, peintures, revêtement de sol dans les chambres. Tarif modifiable sans préavis). Etiquette énergie : A. Différents modèles disponibles pour ce terrain. Assurances et garanties du constructeur (RC professionnelle, décennale, dommage ouvrage, garantie de remboursement de l'acompte, livraison à prix et délai convenu) : https://www.maisons-balency.fr/informations-legales/. HEXAOM Services est enregistré auprès de l'ORIAS en tant que Courtier en financement, Niveau 1, sous le numéro 14001345.

Contactez l'agence de Boos

02 35 80 66 66

    * Champs obligatoires

    Vos informations sont traitées par HEXAOM et transmises à un conseiller commercial qui vous contactera afin de répondre à votre demande. Les plans et images présentés sur notre site sont la propriété d’HEXAOM et ne peuvent pas être reproduits sans son accord. Pour retrouver notre politique de protection des données personnelles et exercer vos droits conformément à la « loi informatique et liberté » cliquez-ici.