Maison neuve à
Bernay (27300) Référence : EL2320317_2

Prix du projet : Maison avec Terrain

prix 297 500 €

  • 6 pièces
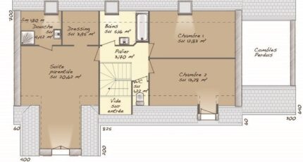
  • 3 chambres
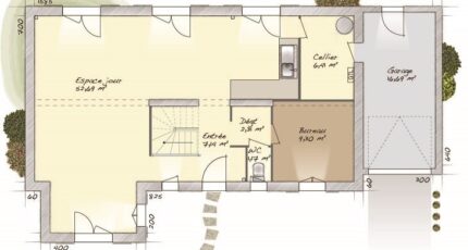
  • Surface maison 133 m2

Maison T6 (133 m²) en vente à Bernay
IDÉALEMENT SITUÉE - MAISON 6 PIÈCES NEUVE
En vente à 45 km de la Manche, Maisons Balency Boos vous propose cette maison de 6 pièces de 133 m² idéalement située dans Bernay (27300). Son intérieur inclut trois chambres, une cuisine et deux salles de bains.
Le terrain du bien est de 1 550 m².
Il s'agit d'une maison de 2 niveaux. Elle est neuve.
La maison se trouve dans un secteur recherché. Il y a des écoles de tous types à moins de 10 minutes à pied, tout comme une crèche. Côté transports, on trouve la gare Bernay à proximité. L'autoroute A28 est accessible à 6 km. Il y a une bibliothèque, un bassin de natation, un tennis, des commerces, des boulangeries, des supermarchés, des épiceries et un bureau de poste à quelques minutes à peine. Enfin, le marché Place Héon a lieu chaque samedi matin.
Elle est à vendre pour la somme de 297 500 €.
Contactez notre agence (Aurélien LEOVANT : 02-35-80-66-66) pour toute question sur la maison, sur les démarches à suivre ou sur les modalités de vente.

Annonce proposée par un Agent Commercial Partenaire.

Mentions légales

Terrain proposé par un partenaire foncier selon disponibilités et autorisation de publicité au prix de 35 000 €. Hors droit d'enregistrement et frais de notaire. Terrain + Maison proposés au prix de 297 500 € (Hors branchements et raccordements, papiers peints, peintures, revêtement de sol dans les chambres. Tarif modifiable sans préavis). Etiquette énergie : A. Différents modèles disponibles pour ce terrain. Assurances et garanties du constructeur (RC professionnelle, décennale, dommage ouvrage, garantie de remboursement de l'acompte, livraison à prix et délai convenu) : https://www.maisons-balency.fr/informations-legales/. HEXAOM Services est enregistré auprès de l'ORIAS en tant que Courtier en financement, Niveau 1, sous le numéro 14001345.

Contactez l'agence de Boos

02 35 80 66 66

    * Champs obligatoires

    Vos informations sont traitées par HEXAOM et transmises à un conseiller commercial qui vous contactera afin de répondre à votre demande. Les plans et images présentés sur notre site sont la propriété d’HEXAOM et ne peuvent pas être reproduits sans son accord. Pour retrouver notre politique de protection des données personnelles et exercer vos droits conformément à la « loi informatique et liberté » cliquez-ici.