Maison neuve à
Bernay (27300) Référence : EL2320317_3

Prix du projet : Maison avec Terrain

prix 252 500 €

  • 6 pièces
  • 4 chambres
  • Surface maison 117 m2

Bernay : maison F6 (117 m²) en vente
IDÉALEMENT SITUÉE - MAISON 6 PIÈCES NEUVE
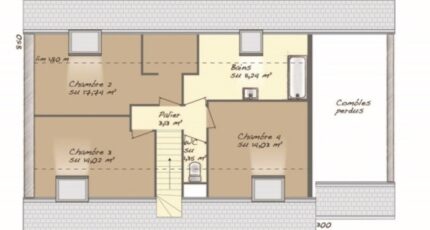
En vente à 45 km de la Manche, idéalement située dans Bernay (27300), venez découvrir cette maison de 6 pièces de plain-pied de 117 m². Elle est composée de quatre chambres, d'une cuisine et de deux salles de bains.
Le terrain de cette maison est de 1 550 m².
Cette maison est neuve.
La maison est située dans un quartier attractif. Des écoles de tous types se trouvent à moins de 10 minutes à pied, tout comme une structure d'accueil pour les enfants en bas âge. Niveau transports, il y a la gare Bernay à quelques pas de la maison. On trouve un accès à l'autoroute A28 à 6 km. On trouve une bibliothèque, un bassin de natation, un tennis, des commerces, des boulangeries, des supermarchés, un bureau de poste et une poissonnerie à quelques minutes. Le marché Place Héon anime les environs chaque samedi matin.
Elle est proposée à l'achat pour 252 500 €.
N'hésitez pas à prendre contact avec notre agence (LEOVANT Aurélien : 02-35-80-66-66) pour toute information sur le bien.

Annonce proposée par un Agent Commercial Partenaire.

Mentions légales

Terrain proposé par un partenaire foncier selon disponibilités et autorisation de publicité au prix de 35 000 €. Hors droit d'enregistrement et frais de notaire. Terrain + Maison proposés au prix de 217 500 € (Hors branchements et raccordements, papiers peints, peintures, revêtement de sol dans les chambres. Tarif modifiable sans préavis). Etiquette énergie : A. Différents modèles disponibles pour ce terrain. Assurances et garanties du constructeur (RC professionnelle, décennale, dommage ouvrage, garantie de remboursement de l'acompte, livraison à prix et délai convenu) : https://www.maisons-balency.fr/informations-legales/. HEXAOM Services est enregistré auprès de l'ORIAS en tant que Courtier en financement, Niveau 1, sous le numéro 14001345.

Contactez l'agence de Boos

02 35 80 66 66

    * Champs obligatoires

    Vos informations sont traitées par HEXAOM et transmises à un conseiller commercial qui vous contactera afin de répondre à votre demande. Les plans et images présentés sur notre site sont la propriété d’HEXAOM et ne peuvent pas être reproduits sans son accord. Pour retrouver notre politique de protection des données personnelles et exercer vos droits conformément à la « loi informatique et liberté » cliquez-ici.