Maison neuve à
Berville-en-Roumois (27520) Référence : KB2440548_3

Prix du projet : Maison avec Terrain

prix 168 000 €

  • 4 pièces
  • 2 chambres
  • Surface maison 70 m2

VENTE d'une maison F4 (70 m²) à Berville-en-Roumois
EMPLACEMENT PRIVILÉGIÉ - MAISON 4 PIÈCES NEUVE
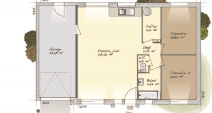
À 43 km de la Manche et à quelques kilomètres de Rouen, en vente bénéficiant d'un emplacement privilégié dans Berville-en-Roumois (27520), Maisons Balency Boos vous présente cette maison de 4 pièces de plain-pied de 70 m². Elle propose deux chambres, une cuisine et une salle de bains.
Le terrain de la maison s'étend sur 1 200 m².
La maison est neuve.
Cette maison est située dans un secteur recherché. L'École Primaire Charles Perrault se trouve à moins de 10 minutes à pied. Niveau transports en commun, il y a la gare Bourgtheroulde-Thuit-Hébert à moins de 10 minutes en voiture. On trouve un commerce à quelques minutes.
Son prix de vente est de 168 000 €.
N'hésitez pas à prendre contact avec notre agence (Kamel BAZIZ : 07-80-36-63-82) pour toute information sur la maison ou sur les démarches à suivre.

Annonce proposée par un Agent Commercial Partenaire.

Mentions légales

Terrain proposé par un partenaire foncier selon disponibilités et autorisation de publicité au prix de 53 000 €. Hors droit d'enregistrement et frais de notaire. Terrain + Maison proposés au prix de 168 000 € (Hors branchements et raccordements, papiers peints, peintures, revêtement de sol dans les chambres. Tarif modifiable sans préavis). Etiquette énergie : A. Différents modèles disponibles pour ce terrain. Assurances et garanties du constructeur (RC professionnelle, décennale, dommage ouvrage, garantie de remboursement de l'acompte, livraison à prix et délai convenu) : https://www.maisons-balency.fr/informations-legales/. HEXAOM Services est enregistré auprès de l'ORIAS en tant que Courtier en financement, Niveau 1, sous le numéro 14001345.

Contactez l'agence de Boos

02 35 80 66 66

    * Champs obligatoires

    Vos informations sont traitées par HEXAOM et transmises à un conseiller commercial qui vous contactera afin de répondre à votre demande. Les plans et images présentés sur notre site sont la propriété d’HEXAOM et ne peuvent pas être reproduits sans son accord. Pour retrouver notre politique de protection des données personnelles et exercer vos droits conformément à la « loi informatique et liberté » cliquez-ici.