Maison neuve à
Bessancourt
(95550) Référence :
CT2414433_1
Prix du projet : Maison avec Terrain
prix 549 800 €
- 7 pièces
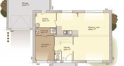
- 4 chambres
- Surface maison 160 m2
VENTE d'une maison T7 (160 m²) à Bessancourt
IDÉALEMENT SITUÉE - MAISON 7 PIÈCES NEUVE
Proche du Transilien H (35 min de Paris), Maisons Balency Baillet-en-France vous propose cette maison de 7 pièces de 160 m² et de 800 m² de terrain idéalement située dans Bessancourt (95550). Son intérieur dispose de quatre chambres, d'une cuisine et de deux salles de bains.
C'est une maison de 2 niveaux. Elle est neuve.
La maison est située dans un secteur prisé. Il y a cinq établissements scolaires à moins de 10 minutes à pied, tout comme deux crèches. Niveau transports, on trouve la gare Bessancourt à proximité. Il y a un tennis, des commerces, trois boulangeries, trois supermarchés, un bureau de poste et une épicerie dans les environs.
Son prix de vente est de 549 800 €.
Prenez contact avec notre agence (TALAMONI Christophe : 06-49-55-08-27) pour toute question sur la maison ou sur les démarches à suivre. Maisons Balency Baillet-en-France vous accompagne à toutes les étapes de l'achat et dans tous vos projets immobiliers.
Annonce proposée par un Agent Commercial Partenaire.
Mentions légales
Terrain proposé par un partenaire foncier selon disponibilités et autorisation de publicité au prix de 249 000 €. Hors droit d'enregistrement et frais de notaire. Terrain + Maison proposés au prix de 549 800 € (Hors branchements et raccordements, papiers peints, peintures, revêtement de sol dans les chambres. Tarif modifiable sans préavis). Etiquette énergie : A. Différents modèles disponibles pour ce terrain. Assurances et garanties du constructeur (RC professionnelle, décennale, dommage ouvrage, garantie de remboursement de l'acompte, livraison à prix et délai convenu) : https://www.maisons-balency.fr/informations-legales/. HEXAOM Services est enregistré auprès de l'ORIAS en tant que Courtier en financement, Niveau 1, sous le numéro 14001345.Agence Maisons Balency de Baillet-en-France (95560)
- Téléphone :
- 01 34 46 05 23
- Adressse :
- 81 rue de Paris
95560 Baillet-en-France, France
