Maison neuve à
Bessancourt
(95550) Référence :
CT2414433_2
Prix du projet : Maison avec Terrain
prix 579 600 €
- 9 pièces
- 4 chambres
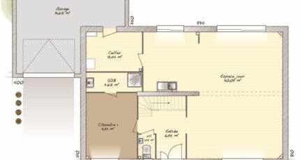
- Surface maison 186 m2
Bessancourt : maison de 9 pièces (186 m²) à vendre
IDÉALEMENT SITUÉE - MAISON 9 PIÈCES NEUVE
En vente : à côté de la gare (Paris à 35 min avec le Transilien H), idéalement située dans Bessancourt (95550), notre agence Maisons Balency Baillet-en-France est heureuse de vous proposer cette maison de 9 pièces de 186 m².
Cette maison compte 2 niveaux. Elle offre quatre chambres, une cuisine et deux salles de bains. Cette maison est neuve.
Le terrain de la propriété est de 800 m².
La maison se trouve dans un quartier attractif. Il y a cinq établissements scolaires à moins de 10 minutes à pied, tout comme deux structures d'accueil pour les tout-petits. Niveau transports en commun, on trouve la gare Bessancourt juste à côté. Il y a un tennis, des commerces, trois boulangeries, trois supermarchés, un bureau de poste et une épicerie à proximité.
Elle est à vendre pour la somme de 579 600 €.
Contactez notre constructeur (Christophe TALAMONI : 06-49-55-08-27) pour toute question sur la maison ou sur les démarches à suivre. Maisons Balency Baillet-en-France est là pour vous accompagner à toutes les étapes de votre projet.
Annonce proposée par un Agent Commercial Partenaire.
Mentions légales
Terrain proposé par un partenaire foncier selon disponibilités et autorisation de publicité au prix de 249 000 €. Hors droit d'enregistrement et frais de notaire. Terrain + Maison proposés au prix de 579 600 € (Hors branchements et raccordements, papiers peints, peintures, revêtement de sol dans les chambres. Tarif modifiable sans préavis). Etiquette énergie : A. Différents modèles disponibles pour ce terrain. Assurances et garanties du constructeur (RC professionnelle, décennale, dommage ouvrage, garantie de remboursement de l'acompte, livraison à prix et délai convenu) : https://www.maisons-balency.fr/informations-legales/. HEXAOM Services est enregistré auprès de l'ORIAS en tant que Courtier en financement, Niveau 1, sous le numéro 14001345.Agence Maisons Balency de Baillet-en-France (95560)
- Téléphone :
- 01 34 46 05 23
- Adressse :
- 81 rue de Paris
95560 Baillet-en-France, France
