Maison neuve à
Bessancourt
(95550) Référence :
CT2414439_3
Prix du projet : Maison avec Terrain
prix 474 900 €
- 7 pièces
- 4 chambres
- Surface maison 160 m2
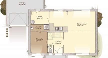
Maison T7 (160 m²) en vente à Bessancourt
EMPLACEMENT PRIVILÉGIÉ - MAISON 7 PIÈCES NEUVE
En vente : à deux pas du Transilien H (35 min de Paris), bénéficiant d'un emplacement d'exception dans Bessancourt (95550), laissez vous charmer par cette maison de 7 pièces de 160 m² et de 400 m² de terrain.
Cette maison comporte 2 niveaux. Elle est composée de quatre chambres, d'une cuisine et de deux salles de bains. La maison est neuve.
Le bien se situe dans un quartier convoité. On trouve cinq établissements scolaires à moins de 10 minutes à pied, tout comme deux structures d'accueil pour les enfants en bas âge. Niveau transports, il y a la gare Bessancourt à proximité. Il y a un tennis, des commerces, trois boulangeries, trois supermarchés, une épicerie et un bureau de poste à quelques minutes.
Il est à vendre pour la somme de 474 900 €.
Contactez notre agence (TALAMONI Christophe : 06-49-55-08-27) pour toute information sur la maison, sur les démarches à suivre ou sur les modalités de vente.
Annonce proposée par un Agent Commercial Partenaire.
Mentions légales
Terrain proposé par un partenaire foncier selon disponibilités et autorisation de publicité au prix de 190 000 €. Hors droit d'enregistrement et frais de notaire. Terrain + Maison proposés au prix de 474 900 € (Hors branchements et raccordements, papiers peints, peintures, revêtement de sol dans les chambres. Tarif modifiable sans préavis). Etiquette énergie : A. Différents modèles disponibles pour ce terrain. Assurances et garanties du constructeur (RC professionnelle, décennale, dommage ouvrage, garantie de remboursement de l'acompte, livraison à prix et délai convenu) : https://www.maisons-balency.fr/informations-legales/. HEXAOM Services est enregistré auprès de l'ORIAS en tant que Courtier en financement, Niveau 1, sous le numéro 14001345.Agence Maisons Balency de Baillet-en-France (95560)
- Téléphone :
- 01 34 46 05 23
- Adressse :
- 81 rue de Paris
95560 Baillet-en-France, France
