Maison neuve à
Bessancourt
(95550) Référence :
MU2445839_2
Prix du projet : Maison avec Terrain
prix 435 000 €
- 5 pièces
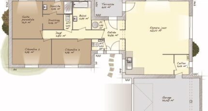
- 3 chambres
- Surface maison 120 m2
VENTE d'une maison de 5 pièces (120 m²) à Bessancourt
IDÉALEMENT SITUÉE - MAISON 5 PIÈCES NEUVE
À quelques minutes du Transilien H (35 min de Paris), venez découvrir en vente, idéalement située dans Bessancourt (95550), cette maison de 5 pièces de plain-pied de 120 m² et de 832 m² de terrain. Conçue de plain-pied, elle est composée de trois chambres, d'une cuisine et de deux salles de bains.
Cette maison est neuve.
Cette propriété se situe dans un secteur convoité. Cinq établissements scolaires se trouvent à moins de 10 minutes à pied, tout comme deux crèches. Côté transports, il y a la gare Bessancourt à quelques pas de la maison. Il y a un tennis, un commerce, une épicerie et une supérette à quelques minutes de la maison.
Elle est proposée à l'achat pour 435 000 €.
Contactez Mylann URBANSKY (06-23-32-28-23) pour toute information sur la maison, sur les démarches à suivre ou sur les modalités de vente. Concrétisez vos projets immobiliers avec Maisons Balency Baillet-en-France.
Annonce proposée par un Agent Commercial Partenaire.
Mentions légales
Terrain proposé par un partenaire foncier selon disponibilités et autorisation de publicité au prix de 249 000 €. Hors droit d'enregistrement et frais de notaire. Terrain + Maison proposés au prix de 435 000 € (Hors branchements et raccordements, papiers peints, peintures, revêtement de sol dans les chambres. Tarif modifiable sans préavis). Etiquette énergie : A. Différents modèles disponibles pour ce terrain. Assurances et garanties du constructeur (RC professionnelle, décennale, dommage ouvrage, garantie de remboursement de l'acompte, livraison à prix et délai convenu) : https://www.maisons-balency.fr/informations-legales/. HEXAOM Services est enregistré auprès de l'ORIAS en tant que Courtier en financement, Niveau 1, sous le numéro 14001345.Agence Maisons Balency de Baillet-en-France (95560)
- Téléphone :
- 01 34 46 05 23
- Adressse :
- 81 rue de Paris
95560 Baillet-en-France, France
