Maison neuve à
Bessancourt
(95550) Référence :
MU2445839_3
Prix du projet : Maison avec Terrain
prix 490 000 €
- 7 pièces
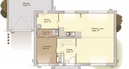
- 4 chambres
- Surface maison 160 m2
VENTE d'une maison de 7 pièces (160 m²) à Bessancourt
IDÉALEMENT SITUÉE - MAISON 7 PIÈCES NEUVE
À vendre : au pied du Transilien H (35 min de Paris), nous vous proposons cette maison de 7 pièces de 160 m² et de 832 m² de terrain idéalement située dans Bessancourt (95550). Elle offre quatre chambres, une cuisine et deux salles de bains.
Cette maison comporte 2 niveaux. Elle est neuve.
Ce bien se trouve dans un secteur prisé. Il y a cinq établissements scolaires à moins de 10 minutes à pied, tout comme deux crèches. Côté transports, on trouve la gare Bessancourt dans un rayon de 1 km. Il y a un tennis, un commerce, une supérette et une épicerie à proximité.
Il est à vendre pour la somme de 490 000 €.
Prenez contact avec Mylann URBANSKY (06-23-32-28-23) pour plus de renseignements sur la maison ou sur les modalités de vente. Concrétisez vos projets immobiliers avec Maisons Balency Baillet-en-France.
Annonce proposée par un Agent Commercial Partenaire.
Mentions légales
Terrain proposé par un partenaire foncier selon disponibilités et autorisation de publicité au prix de 249 000 €. Hors droit d'enregistrement et frais de notaire. Terrain + Maison proposés au prix de 490 000 € (Hors branchements et raccordements, papiers peints, peintures, revêtement de sol dans les chambres. Tarif modifiable sans préavis). Etiquette énergie : A. Différents modèles disponibles pour ce terrain. Assurances et garanties du constructeur (RC professionnelle, décennale, dommage ouvrage, garantie de remboursement de l'acompte, livraison à prix et délai convenu) : https://www.maisons-balency.fr/informations-legales/. HEXAOM Services est enregistré auprès de l'ORIAS en tant que Courtier en financement, Niveau 1, sous le numéro 14001345.Agence Maisons Balency de Baillet-en-France (95560)
- Téléphone :
- 01 34 46 05 23
- Adressse :
- 81 rue de Paris
95560 Baillet-en-France, France
