Maison neuve à
Beuzeville-la-Grenier (76210) Référence : EL313015_5

Prix du projet : Maison avec Terrain

prix 231 100 €

  • 6 pièces
  • 4 chambres
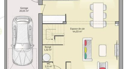
  • Surface maison 91 m2

VENTE : maison T6 (91 m²) à Beuzeville-la-Grenier
IDÉALEMENT SITUÉE - MAISON 6 PIÈCES NEUVE
En vente : à 13 km de la Manche et à 23 km du Havre, votre agence Maisons Balency Boos est ravie de vous présenter, idéalement située dans Beuzeville-la-Grenier (76210), cette maison de 6 pièces de 91 m² et de 399 m² de terrain.
Il s'agit d'une maison de 2 niveaux. Son intérieur inclut quatre chambres, une cuisine et une salle de bains. La maison est neuve.
La propriété est située dans un secteur prisé. L'École Élémentaire Lucienne Julien et l'École Maternelle Pierre Julien se trouvent à moins de 10 minutes à pied. Niveau transports, il y a quatre gares à moins de 10 minutes en voiture. L'autoroute A29 est accessible à 2 km. On trouve un tennis, une boulangerie et deux boucheries-charcuteries à quelques minutes à peine.
Elle est proposée à l'achat pour 231 100 €.
N'hésitez pas à prendre contact avec notre constructeur (LEOVANT Dany : 06-09-43-87-49) pour toute question sur la maison. Maisons Balency Boos vous accompagne dans toutes vos démarches et à toutes les étapes de votre projet.

Annonce proposée par un Agent Commercial Partenaire.

Mentions légales

Terrain proposé par un partenaire foncier selon disponibilités et autorisation de publicité au prix de 60 000 €. Hors droit d'enregistrement et frais de notaire. Terrain + Maison proposés au prix de 171 100 € (Hors branchements et raccordements, papiers peints, peintures, revêtement de sol dans les chambres. Tarif modifiable sans préavis). Etiquette énergie : A. Différents modèles disponibles pour ce terrain. Assurances et garanties du constructeur (RC professionnelle, décennale, dommage ouvrage, garantie de remboursement de l'acompte, livraison à prix et délai convenu) : https://www.maisons-balency.fr/informations-legales/. HEXAOM Services est enregistré auprès de l'ORIAS en tant que Courtier en financement, Niveau 1, sous le numéro 14001345.

Contactez l'agence de Boos

02 35 80 66 66

    * Champs obligatoires

    Vos informations sont traitées par HEXAOM et transmises à un conseiller commercial qui vous contactera afin de répondre à votre demande. Les plans et images présentés sur notre site sont la propriété d’HEXAOM et ne peuvent pas être reproduits sans son accord. Pour retrouver notre politique de protection des données personnelles et exercer vos droits conformément à la « loi informatique et liberté » cliquez-ici.