Maison neuve à
Beuzeville-la-Grenier (76210) Référence : SEMA9045_12

Prix du projet : Maison avec Terrain

prix 190 000 €

  • 4 pièces
  • 2 chambres
  • Surface maison 50 m2

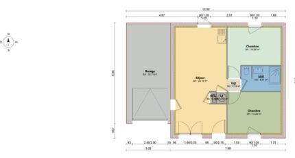
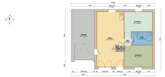
VENTE d'une maison de 4 pièces (49 m²) à Beuzeville-la-Grenier
PROCHE DU HAVRE - MAISON 4 PIÈCES NEUVE
En vente : à 13 km de la Manche et à deux pas du Havre, à Beuzeville-la-Grenier (76210), nous vous proposons cette maison de 4 pièces de plain-pied de 49 m².
Son intérieur dispose de deux chambres, d'une cuisine et d'une salle de bains. Cette maison est neuve.
Le terrain du bien s'étend sur 800 m².
On trouve l'École Élémentaire Lucienne Julien et l'École Maternelle Pierre Julien à moins de 10 minutes à pied. Côté transports, il y a quatre gares à moins de 10 minutes en voiture. L'autoroute A29 est accessible à 2 km. On trouve un tennis, une boulangerie et deux boucheries-charcuteries à proximité du logement.
Elle est à vendre pour la somme de 190 000 €.
Contactez notre agence (Sébastien MASSON : 06-23-38-14-17) pour toute question sur cette maison, sur les modalités de vente ou sur les démarches à suivre. Maisons Balency Boos est là pour vous accompagner dans tous vos projets immobiliers.

Annonce proposée par un Agent Commercial Partenaire.

Mentions légales

Terrain proposé par un partenaire foncier selon disponibilités et autorisation de publicité au prix de 83 000 €. Hors droit d'enregistrement et frais de notaire. Terrain + Maison proposés au prix de 190 000 € (Hors branchements et raccordements, papiers peints, peintures, revêtement de sol dans les chambres. Tarif modifiable sans préavis). Etiquette énergie : A. Différents modèles disponibles pour ce terrain. Assurances et garanties du constructeur (RC professionnelle, décennale, dommage ouvrage, garantie de remboursement de l'acompte, livraison à prix et délai convenu) : https://www.maisons-balency.fr/informations-legales/. HEXAOM Services est enregistré auprès de l'ORIAS en tant que Courtier en financement, Niveau 1, sous le numéro 14001345.

Contactez l'agence de Boos

02 35 80 66 66

    * Champs obligatoires

    Vos informations sont traitées par HEXAOM et transmises à un conseiller commercial qui vous contactera afin de répondre à votre demande. Les plans et images présentés sur notre site sont la propriété d’HEXAOM et ne peuvent pas être reproduits sans son accord. Pour retrouver notre politique de protection des données personnelles et exercer vos droits conformément à la « loi informatique et liberté » cliquez-ici.