Maison neuve à
Beuzeville-la-Grenier (76210) Référence : SEMA9045_7

Prix du projet : Maison avec Terrain

prix 277 000 €

  • 9 pièces
  • 5 chambres
  • Surface maison 124 m2

Beuzeville-la-Grenier : maison de 9 pièces (124 m²) en vente
MAISON 9 PIÈCES NEUVE - PROCHE DU HAVRE
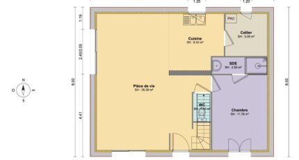
En vente à 13 km de la Manche et à 23 km du Havre, nous vous présentons à Beuzeville-la-Grenier (76210), cette maison de 9 pièces de 124 m².
Cette maison comporte 2 niveaux. Son intérieur est composé de cinq chambres, d'une cuisine et de trois salles de bains. La maison est neuve.
Le terrain du bien s'étend sur 800 m².
L'École Élémentaire Lucienne Julien et l'École Maternelle Pierre Julien se trouvent à moins de 10 minutes à pied. Niveau transports en commun, il y a quatre gares à moins de 10 minutes en voiture. Il y a un accès à l'autoroute A29 à 2 km. On trouve un tennis, une boulangerie et deux boucheries-charcuteries à quelques minutes à peine.
Il est à vendre pour la somme de 277 000 €.
Contactez Sébastien MASSON (tél : 06-23-38-14-17) pour plus d'informations sur cette maison, sur les démarches à suivre ou sur les modalités de vente.

Annonce proposée par un Agent Commercial Partenaire.

Mentions légales

Terrain proposé par un partenaire foncier selon disponibilités et autorisation de publicité au prix de 83 000 €. Hors droit d'enregistrement et frais de notaire. Terrain + Maison proposés au prix de 277 000 € (Hors branchements et raccordements, papiers peints, peintures, revêtement de sol dans les chambres. Tarif modifiable sans préavis). Etiquette énergie : A. Différents modèles disponibles pour ce terrain. Assurances et garanties du constructeur (RC professionnelle, décennale, dommage ouvrage, garantie de remboursement de l'acompte, livraison à prix et délai convenu) : https://www.maisons-balency.fr/informations-legales/. HEXAOM Services est enregistré auprès de l'ORIAS en tant que Courtier en financement, Niveau 1, sous le numéro 14001345.

Contactez l'agence de Boos

02 35 80 66 66

    * Champs obligatoires

    Vos informations sont traitées par HEXAOM et transmises à un conseiller commercial qui vous contactera afin de répondre à votre demande. Les plans et images présentés sur notre site sont la propriété d’HEXAOM et ne peuvent pas être reproduits sans son accord. Pour retrouver notre politique de protection des données personnelles et exercer vos droits conformément à la « loi informatique et liberté » cliquez-ici.