Maison neuve à
Bezons
(95870) Référence :
AD2302227_1
Prix du projet : Maison avec Terrain
prix 645 650 €
- 7 pièces
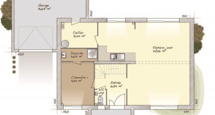
- 4 chambres
- Surface maison 160 m2
VENTE d'une maison de 7 pièces (160 m²) à Bezons
MAISON 7 PIÈCES NEUVE
Proche du RER A (station Houilles-Carrières-sur-Seine, 10 min de Paris), nous sommes heureux de vous proposer en vente à Bezons (95870), cette maison de 7 pièces de 160 m². Son intérieur inclut quatre chambres, une cuisine et deux salles de bains.
Le terrain de cette maison est de 395 m².
Il s'agit d'une maison de 2 niveaux. Elle est neuve.
Des écoles de tous niveaux sont implantées à moins de 10 minutes à pied, tout comme une crèche. Côté transports, on trouve les lignes de RER A, C et D ainsi que 2 gares à moins de 10 minutes en voiture. Il y a une bibliothèque, deux bassins de natation, deux tennis, des supermarchés, des commerces, des boulangeries, deux boucheries-charcuteries et des épiceries dans les environs.
Son prix de vente est de 645 650 €.
Prenez contact avec notre agence (DUTEURTRE Arnaud : 06-13-43-01-46) pour toute information sur le bien et sur les modalités de vente. Maisons Balency Coignières vous accompagne dans tous vos projets immobiliers et dans toutes vos démarches.
Annonce proposée par un Agent Commercial Partenaire.
Mentions légales
Terrain proposé par un partenaire foncier selon disponibilités et autorisation de publicité au prix de 283 000 €. Hors droit d'enregistrement et frais de notaire. Maison proposée, avec un contrat de construction de maison individuelle, dans le cadre de la loi du 19/12/1990, au prix de 362 650 € (Hors branchements et raccordements, papiers peints, peintures, revêtement de sol dans les chambres, qui sont chiffrés dans les travaux qui restent à charge du client. Tarif modifiable sans préavis). Étiquette énergie : A. Différents modèles disponibles pour ce terrain. Assurances et garanties du constructeur comprises (RC professionnelle, décennale, dommage ouvrage).Agence Maisons Balency de Coignières (78310)
- Téléphone :
- 01 34 61 42 59
- Adressse :
- Domexpo Ouest
78310 Coignières, France
