Maison neuve à
Bihorel (76420) Référence : KB2392894_2

Prix du projet : Maison avec Terrain

prix 675 000 €

  • 7 pièces
  • 4 chambres
  • Surface maison 160 m2

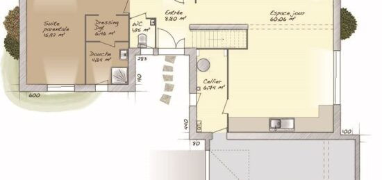
Bihorel : maison F7 (160 m²) à vendre
EMPLACEMENT PRIVILÉGIÉ - MAISON 7 PIÈCES NEUVE
À vendre : à quelques kilomètres de Rouen, notre agence Maisons Balency Boos est ravie de vous proposer, bénéficiant d'un emplacement privilégié dans Bihorel (76420), cette maison de 7 pièces de 160 m² et de 2 100 m² de terrain.
Il s'agit d'une maison de 2 niveaux. Son intérieur se divise en quatre chambres, une cuisine et deux salles de bains. La maison est neuve.
La maison se trouve dans un quartier convoité. Il y a l'École Élémentaire Privée Saint-Jean Bosco, l'École Primaire le Globe Coloré et l'École Primaire Georges Méliès à moins de 10 minutes à pied et une structure d'accueil pour la petite enfance. Côté transports, on trouve six gares à moins de 10 minutes en voiture. La nationale N28 est accessible à 1 km. Il y a un tennis, quatre boulangeries, des commerces, deux supermarchés, une boucherie-charcuterie et un bureau de poste dans les environs.
Elle est proposée à l'achat pour 675 000 €.
N'hésitez pas à prendre contact avec notre constructeur (Kamel BAZIZ : 07-80-36-63-82) pour plus de renseignements sur la maison.

Annonce proposée par un Agent Commercial Partenaire.

Mentions légales

Terrain proposé par un partenaire foncier selon disponibilités et autorisation de publicité au prix de 499 000 €. Hors droit d'enregistrement et frais de notaire. Terrain + Maison proposés au prix de 675 000 € (Hors branchements et raccordements, papiers peints, peintures, revêtement de sol dans les chambres. Tarif modifiable sans préavis). Etiquette énergie : A. Différents modèles disponibles pour ce terrain. Assurances et garanties du constructeur (RC professionnelle, décennale, dommage ouvrage, garantie de remboursement de l'acompte, livraison à prix et délai convenu) : https://www.maisons-balency.fr/informations-legales/. HEXAOM Services est enregistré auprès de l'ORIAS en tant que Courtier en financement, Niveau 1, sous le numéro 14001345.

Contactez l'agence de Boos

02 35 80 66 66

    * Champs obligatoires

    Vos informations sont traitées par HEXAOM et transmises à un conseiller commercial qui vous contactera afin de répondre à votre demande. Les plans et images présentés sur notre site sont la propriété d’HEXAOM et ne peuvent pas être reproduits sans son accord. Pour retrouver notre politique de protection des données personnelles et exercer vos droits conformément à la « loi informatique et liberté » cliquez-ici.