Maison neuve à
Bihorel (76420) Référence : KB2392894_3

Prix du projet : Maison avec Terrain

prix 685 000 €

  • 9 pièces
  • 4 chambres
  • Surface maison 186 m2

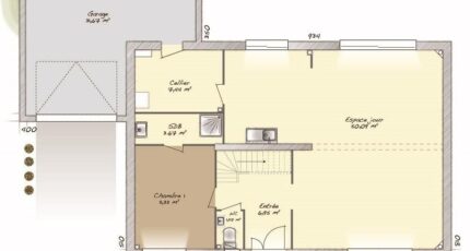
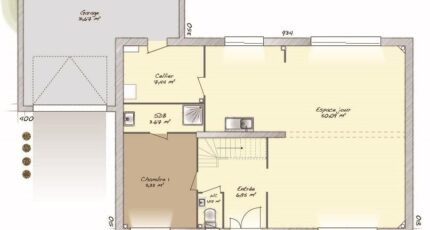
Maison F9 (186 m²) à vendre à Bihorel
EMPLACEMENT PRIVILÉGIÉ - MAISON 9 PIÈCES NEUVE
En vente : localisée à deux pas de Rouen, bénéficiant d'un emplacement d'exception dans Bihorel (76420), découvrez cette maison de 9 pièces de 186 m² et de 2 100 m² de terrain.
Cette maison compte 2 niveaux. Elle inclut quatre chambres, une cuisine et deux salles de bains. Cette maison est neuve.
La maison se trouve dans un quartier recherché. L'École Élémentaire Privée Saint-Jean Bosco, l'École Primaire le Globe Coloré et l'École Primaire Georges Méliès sont implantées à moins de 10 minutes à pied, tout comme une crèche. Niveau transports, on trouve six gares à moins de 10 minutes en voiture. On trouve un accès à la nationale N28 à 1 km. Il y a un tennis, quatre boulangeries, des commerces, deux supermarchés, une épicerie et un bureau de poste dans les environs.
Elle est proposée à l'achat pour 685 000 €.
Prenez contact avec Kamel BAZIZ (tél : 07-80-36-63-82) pour tout renseignement sur la maison, sur les modalités de vente ou sur les démarches à suivre. Maisons Balency Boos est là pour vous accompagner dans tous vos projets immobiliers.

Annonce proposée par un Agent Commercial Partenaire.

Mentions légales

Terrain proposé par un partenaire foncier selon disponibilités et autorisation de publicité au prix de 499 000 €. Hors droit d'enregistrement et frais de notaire. Terrain + Maison proposés au prix de 685 000 € (Hors branchements et raccordements, papiers peints, peintures, revêtement de sol dans les chambres. Tarif modifiable sans préavis). Etiquette énergie : A. Différents modèles disponibles pour ce terrain. Assurances et garanties du constructeur (RC professionnelle, décennale, dommage ouvrage, garantie de remboursement de l'acompte, livraison à prix et délai convenu) : https://www.maisons-balency.fr/informations-legales/. HEXAOM Services est enregistré auprès de l'ORIAS en tant que Courtier en financement, Niveau 1, sous le numéro 14001345.

Contactez l'agence de Boos

02 35 80 66 66

    * Champs obligatoires

    Vos informations sont traitées par HEXAOM et transmises à un conseiller commercial qui vous contactera afin de répondre à votre demande. Les plans et images présentés sur notre site sont la propriété d’HEXAOM et ne peuvent pas être reproduits sans son accord. Pour retrouver notre politique de protection des données personnelles et exercer vos droits conformément à la « loi informatique et liberté » cliquez-ici.