Maison neuve à
Bihorel (76420) Référence : KB2392894_4

Prix du projet : Maison avec Terrain

prix 705 000 €

  • 8 pièces
  • 5 chambres
  • Surface maison 200 m2

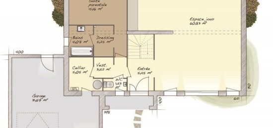
VENTE d'une maison de 8 pièces (200 m²) à Bihorel
EMPLACEMENT PRIVILÉGIÉ - MAISON 8 PIÈCES NEUVE
À deux pas de Rouen, à vendre bénéficiant d'un emplacement privilégié dans Bihorel (76420), Maisons Balency Boos vous propose cette maison de 8 pièces de 200 m² et de 2 100 m² de terrain.
Il s'agit d'une maison de 2 niveaux. Elle offre cinq chambres, une cuisine et deux salles de bains. La maison est neuve.
Cette maison se trouve dans un quartier prisé. L'École Élémentaire Privée Saint-Jean Bosco, l'École Primaire le Globe Coloré et l'École Primaire Georges Méliès sont implantées à moins de 10 minutes à pied, tout comme une structure d'accueil pour les enfants en bas âge. Côté transports, on trouve six gares à moins de 10 minutes en voiture. La nationale N28 est accessible à 1 km. Il y a un tennis, quatre boulangeries, des commerces, deux supermarchés, une épicerie et une boucherie-charcuterie à proximité.
Elle est proposée à l'achat pour 705 000 €.
Prenez contact avec Kamel BAZIZ (07-80-36-63-82) pour obtenir de plus amples informations sur la maison, sur les modalités de vente ou sur les démarches à suivre. Faites de vos projets immobiliers une réalité avec Maisons Balency Boos.

Annonce proposée par un Agent Commercial Partenaire.

Mentions légales

Terrain proposé par un partenaire foncier selon disponibilités et autorisation de publicité au prix de 499 000 €. Hors droit d'enregistrement et frais de notaire. Terrain + Maison proposés au prix de 705 000 € (Hors branchements et raccordements, papiers peints, peintures, revêtement de sol dans les chambres. Tarif modifiable sans préavis). Etiquette énergie : A. Différents modèles disponibles pour ce terrain. Assurances et garanties du constructeur (RC professionnelle, décennale, dommage ouvrage, garantie de remboursement de l'acompte, livraison à prix et délai convenu) : https://www.maisons-balency.fr/informations-legales/. HEXAOM Services est enregistré auprès de l'ORIAS en tant que Courtier en financement, Niveau 1, sous le numéro 14001345.

Contactez l'agence de Boos

02 35 80 66 66

    * Champs obligatoires

    Vos informations sont traitées par HEXAOM et transmises à un conseiller commercial qui vous contactera afin de répondre à votre demande. Les plans et images présentés sur notre site sont la propriété d’HEXAOM et ne peuvent pas être reproduits sans son accord. Pour retrouver notre politique de protection des données personnelles et exercer vos droits conformément à la « loi informatique et liberté » cliquez-ici.