Maison neuve à
Blauzac (30700) Référence : PP2319511_2

Prix du projet : Maison avec Terrain

prix 262 600 €

  • 5 pièces
  • 3 chambres
  • Surface maison 85 m2

VENTE : maison de 5 pièces (85 m²) à Blauzac
IDÉALEMENT SITUÉE - MAISON 5 PIÈCES NEUVE
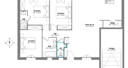
En vente : située à 15 km de Nîmes, notre agence Maisons Balency Uzès est heureuse de vous présenter, idéalement située dans Blauzac (30700), cette maison de 5 pièces de plain-pied de 85 m² et de 425 m² de terrain. Conçue de plain-pied, elle dispose de trois chambres, d'une cuisine et de deux salles de bains.
La maison est neuve.
La maison se situe dans un secteur prisé. L'École Primaire Pré de Valence se trouve à moins de 10 minutes à pied. On trouve un accès à la nationale N106 à 10 km. Il y a un tennis dans les environs.
Elle est à vendre pour la somme de 262 600 €.
N'hésitez pas à prendre contact avec Pascale PIEL (O6-O1-26-64-83) pour plus d'informations sur la propriété.

Mentions légales

Terrain proposé par un partenaire foncier selon disponibilités et autorisation de publicité au prix de 99 000 €. Hors droit d'enregistrement et frais de notaire. Terrain + Maison proposés au prix de 163 600 € (Hors branchements et raccordements, papiers peints, peintures, revêtement de sol dans les chambres. Tarif modifiable sans préavis). Etiquette énergie : A. Différents modèles disponibles pour ce terrain. Assurances et garanties du constructeur (RC professionnelle, décennale, dommage ouvrage, garantie de remboursement de l'acompte, livraison à prix et délai convenu) : https://www.maisons-balency.fr/informations-legales/. HEXAOM Services est enregistré auprès de l'ORIAS en tant que Courtier en financement, Niveau 1, sous le numéro 14001345.

Contactez l'agence de Uzès

04 66 57 25 45

    * Champs obligatoires

    Vos informations sont traitées par HEXAOM et transmises à un conseiller commercial qui vous contactera afin de répondre à votre demande. Les plans et images présentés sur notre site sont la propriété d’HEXAOM et ne peuvent pas être reproduits sans son accord. Pour retrouver notre politique de protection des données personnelles et exercer vos droits conformément à la « loi informatique et liberté » cliquez-ici.