Maison neuve à
Bois-l'Évêque (76160) Référence : MJ2307327_3

Prix du projet : Maison avec Terrain

prix 319 000 €

  • 6 pièces
  • 5 chambres
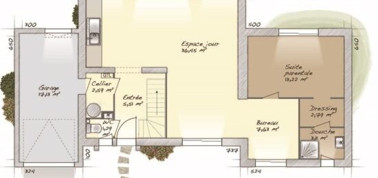
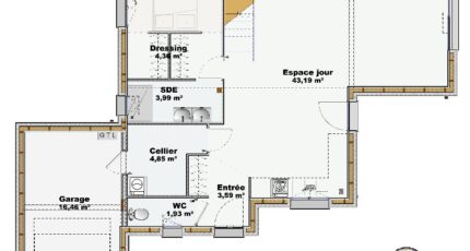
  • Surface maison 114 m2

VENTE d'une maison T6 (114 m²) à Bois-l'Évêque
QUARTIER RECHERCHÉ - MAISON 6 PIÈCES NEUVE
À vendre : située à 12 km de Rouen, notre agence Maisons Balency Boos est ravie de vous présenter cette maison de 6 pièces de 114 m² et de 501 m² de terrain dans un secteur convoité de Bois-l'Évêque (76160).
Cette maison possède 2 niveaux. Son intérieur se divise en cinq chambres, une cuisine et deux salles de bains. Cette maison est neuve.
Ce bien se trouve dans un quartier recherché. On y trouve une école élémentaire. Côté transports en commun, il y a les gares Saint-Martin-du-Vivier et Morgny-la-Pommeraye à moins de 10 minutes en voiture. L'autoroute A28 et la nationale N28 sont accessibles à moins de 10 km. On trouve un commerce à quelques minutes à peine.
Il est proposé à l'achat pour 319 000 €.
Contactez Michael JOURDON (06.43.05.84.44) pour obtenir de plus amples renseignements sur la maison, sur les démarches à suivre ou sur les modalités de vente.

Annonce proposée par un Agent Commercial Partenaire.

Mentions légales

Terrain proposé par un partenaire foncier selon disponibilités et autorisation de publicité au prix de 80 000 €. Hors droit d'enregistrement et frais de notaire. Terrain + Maison proposés au prix de 239 000 € (Hors branchements et raccordements, papiers peints, peintures, revêtement de sol dans les chambres. Tarif modifiable sans préavis). Etiquette énergie : A. Différents modèles disponibles pour ce terrain. Assurances et garanties du constructeur (RC professionnelle, décennale, dommage ouvrage, garantie de remboursement de l'acompte, livraison à prix et délai convenu) : https://www.maisons-balency.fr/informations-legales/. HEXAOM Services est enregistré auprès de l'ORIAS en tant que Courtier en financement, Niveau 1, sous le numéro 14001345.

Contactez l'agence de Boos

02 35 80 66 66

    * Champs obligatoires

    Vos informations sont traitées par HEXAOM et transmises à un conseiller commercial qui vous contactera afin de répondre à votre demande. Les plans et images présentés sur notre site sont la propriété d’HEXAOM et ne peuvent pas être reproduits sans son accord. Pour retrouver notre politique de protection des données personnelles et exercer vos droits conformément à la « loi informatique et liberté » cliquez-ici.