Maison neuve à
Bois-l'Évêque (76160) Référence : SEMA9023_9

Prix du projet : Maison avec Terrain

prix 354 000 €

  • 5 pièces
  • 3 chambres
  • Surface maison 120 m2

VENTE : maison T5 (120 m²) à Bois-l'Évêque
PROCHE DE ROUEN - MAISON 5 PIÈCES NEUVE
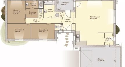
En vente : située à 12 km de Rouen, nous sommes heureux de vous présenter cette maison de 5 pièces de plain-pied de 120 m² à Bois-l'Évêque (76160). Elle compte trois chambres, une cuisine et deux salles de bains.
Le terrain de la propriété est de 600 m².
Cette maison est neuve.
Il y a une école élémentaire dans le quartier. Niveau transports, on trouve les gares Saint-Martin-du-Vivier et Morgny-la-Pommeraye à moins de 10 minutes en voiture. L'autoroute A28 et la nationale N28 sont accessibles à moins de 10 km. Il y a un commerce à quelques minutes à peine.
Elle est proposée à l'achat pour 354 000 €.
Contactez Sébastien MASSON (06-23-38-14-17) pour tout renseignement sur la maison ou sur les modalités de vente.

Annonce proposée par un Agent Commercial Partenaire.

Mentions légales

Terrain proposé par un partenaire foncier selon disponibilités et autorisation de publicité au prix de 80 000 €. Hors droit d'enregistrement et frais de notaire. Maison proposée, avec un contrat de construction de maison individuelle, dans le cadre de la loi du 19/12/1990, au prix de 274 000 € (Hors branchements et raccordements, papiers peints, peintures, revêtement de sol dans les chambres, qui sont chiffrés dans les travaux qui restent à charge du client. Tarif modifiable sans préavis). Étiquette énergie : A. Différents modèles disponibles pour ce terrain. Assurances et garanties du constructeur comprises (RC professionnelle, décennale, dommage ouvrage).

Contactez l'agence de Boos

02 35 80 66 66

    * Champs obligatoires

    Vos informations sont traitées par HEXAOM et transmises à un conseiller commercial qui vous contactera afin de répondre à votre demande. Les plans et images présentés sur notre site sont la propriété d’HEXAOM et ne peuvent pas être reproduits sans son accord. Pour retrouver notre politique de protection des données personnelles et exercer vos droits conformément à la « loi informatique et liberté » cliquez-ici.