Maison neuve à
Boisemont
(95000) Référence :
MU2275470_4
Prix du projet : Maison avec Terrain
prix 320 000 €
- 5 pièces
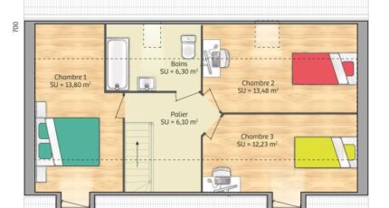
- 3 chambres
- Surface maison 80 m2
VENTE : maison de 5 pièces (80 m²) à Boisemont
IDÉALEMENT SITUÉE - MAISON 5 PIÈCES NEUVE
À vendre : à deux pas de la gare de Vaux-sur-Seine (Paris à 35 min avec le Transilien J), nous sommes heureux de vous présenter, idéalement située dans Boisemont (95000), cette maison de 5 pièces de 80 m².
Il s'agit d'une maison de 2 niveaux. Son intérieur inclut trois chambres, une cuisine et une salle de bains. Cette maison est neuve.
Le terrain du bien est de 534 m².
La maison se situe dans un secteur convoité. L'École Primaire Publique Chasles le Roux est implantée à moins de 10 minutes à pied, tout comme une crèche. Niveau transports en commun, on trouve le RER A et C ainsi que 30 gares à moins de 10 minutes en voiture. Il y a un tennis dans les environs.
Elle est à vendre pour la somme de 320 000 €.
Prenez contact avec notre agence (URBANSKY Mylann : 06-23-32-28-23) pour toute information sur la maison, sur les démarches à suivre ou sur les modalités de vente.
Annonce proposée par un Agent Commercial Partenaire.
Mentions légales
Terrain proposé par un partenaire foncier selon disponibilités et autorisation de publicité au prix de 170 000 €. Hors droit d'enregistrement et frais de notaire. Maison proposée, avec un contrat de construction de maison individuelle, dans le cadre de la loi du 19/12/1990, au prix de 150 000 € (Hors branchements et raccordements, papiers peints, peintures, revêtement de sol dans les chambres, qui sont chiffrés dans les travaux qui restent à charge du client. Tarif modifiable sans préavis). Étiquette énergie : A. Différents modèles disponibles pour ce terrain. Assurances et garanties du constructeur comprises (RC professionnelle, décennale, dommage ouvrage).Agence Maisons Balency de Baillet-en-France (95560)
- Téléphone :
- 01 34 46 05 23
- Adressse :
- 81 rue de Paris
95560 Baillet-en-France, France
