Maison neuve à
Boissise-la-Bertrand
(77350) Référence :
PM2306972_2
Prix du projet : Maison avec Terrain
prix 424 000 €
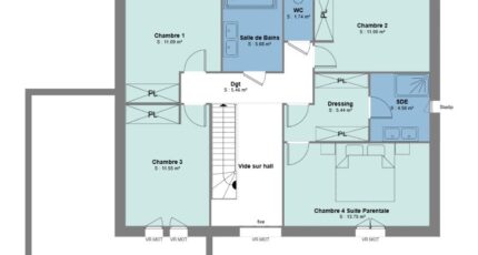
- 6 pièces
- 4 chambres
- Surface maison 136 m2
Proche SEINE-PORT (77240), dès 424 000 € :
Élégante Demeure Familiale de 136 m² constructible sur une parcelle en lot avant de 450 m² !
Faites confiance aux Maisons Balency d'Ormoy pour vous réaliser une habitation de 4 chambres et de 2 salles-de-bains à seulement 12 minutes de Seine-Port.
Des groupes scolaires vous seront accessibles aisément, ainsi que des commerces et la gare de Boissise-le-Roi (ligne R) permettant de relier Paris en moins d'une heure.
Le centre commercial Carré Sénart et le parc de loisirs de Saint-Pierre-du-Perray sont, quant à eux, également joognables rapidement, tout comme les établissements scolaires et les services de Cesson ou Saint-Fargeau-Ponthierry.
Réalisez votre projet sur mesure ou personnalisez l'un de nos modèles issus de notre catalogue ; toutes nos constructions suivent scrupuleusement les normes environnementales RE2020, garantissant confort et performance énergétique (score DPE A ou B).
Maisons BALENCY - Agence d'Ormoy
23 chemin de Tournenfils - 91540 ORMOY
09 67 70 15 81
Annonce proposée par un Agent Commercial Partenaire.
Mentions légales
Terrain proposé par un partenaire foncier selon disponibilités et autorisation de publicité au prix de 154 000 €. Hors droit d'enregistrement et frais de notaire. Maison proposée, avec un contrat de construction de maison individuelle, dans le cadre de la loi du 19/12/1990, au prix de 270 000 € (Hors branchements et raccordements, papiers peints, peintures, revêtement de sol dans les chambres, qui sont chiffrés dans les travaux qui restent à charge du client. Tarif modifiable sans préavis). Étiquette énergie : A. Différents modèles disponibles pour ce terrain. Assurances et garanties du constructeur comprises (RC professionnelle, décennale, dommage ouvrage).Agence Maisons Balency de Ormoy (91540)
- Téléphone :
- 09 67 70 15 81
- Adressse :
- 23 chemin de Tournenfils - 1er étage
91540 Ormoy, France
