Maison neuve à
Boissise-la-Bertrand
(77350) Référence :
PM2306972_3
Prix du projet : Maison avec Terrain
prix 379 000 €
- 7 pièces
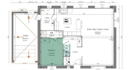
- 5 chambres
- Surface maison 142 m2
Devenez Propriétaire à 12 minutes de SEINE-PORT (77240), dès 379 000 € :
Spacieuse Maison Familiale en R+1 de 142 m² constructible sur un lot avant de 450 m² !
PROCHE RER R
Confiez votre projet de construction aux Maisons Balency d'Ormoy et acquérez une demeure de 5 chambres et de 3 salles-de-bains.
Des groupes scolaires seront facilement accessibles dans les environs proches, ainsi que des commerces et la gare de Boissise-le-Roi (ligne R) permettant de relier Paris en moins d'une heure.
Le centre commercial Carré Sénart et le parc de loisirs de Saint-Pierre-du-Perray sont, quant à eux, également joognables rapidement, tout comme les établissements scolaires et les services de Cesson ou Saint-Fargeau-Ponthierry.
Réalisez votre projet sur mesure ou personnalisez l'un de nos modèles issus de notre catalogue ; toutes nos constructions suivent scrupuleusement les normes environnementales RE2020, garantissant confort et performance énergétique (score DPE A ou B).
Maisons BALENCY - Agence d'Ormoy
23 chemin de Tournenfils - 91540 ORMOY
09 67 70 15 81
Annonce proposée par un Agent Commercial Partenaire.
Mentions légales
Terrain proposé par un partenaire foncier selon disponibilités et autorisation de publicité au prix de 154 000 €. Hors droit d'enregistrement et frais de notaire. Maison proposée, avec un contrat de construction de maison individuelle, dans le cadre de la loi du 19/12/1990, au prix de 225 000 € (Hors branchements et raccordements, papiers peints, peintures, revêtement de sol dans les chambres, qui sont chiffrés dans les travaux qui restent à charge du client. Tarif modifiable sans préavis). Étiquette énergie : A. Différents modèles disponibles pour ce terrain. Assurances et garanties du constructeur comprises (RC professionnelle, décennale, dommage ouvrage).Agence Maisons Balency de Ormoy (91540)
- Téléphone :
- 09 67 70 15 81
- Adressse :
- 23 chemin de Tournenfils - 1er étage
91540 Ormoy, France
