Maison neuve à
Boissise-la-Bertrand
(77350) Référence :
KM2444105_1
Prix du projet : Maison avec Terrain
prix 530 000 €
- 6 pièces
- 3 chambres
- Surface maison 150 m2
Votre projet de vie sur mesure : Maison + Terrain à proximité de Seine-Port
Saisissez l'opportunité de devenir propriétaire d'une maison neuve sur un terrain constructible de 450 m² situé à moins de 5 km de Seine-Port (Lot C).
Ce terrain plat et viabilisé, rare dans le secteur, offre un cadre idéal pour la construction de votre future résidence principale. Nous vous proposons un projet clé en main, incluant une maison contemporaine à étage, pensée pour le confort de toute la famille.
Descriptif du projet de maison (personnalisable) :
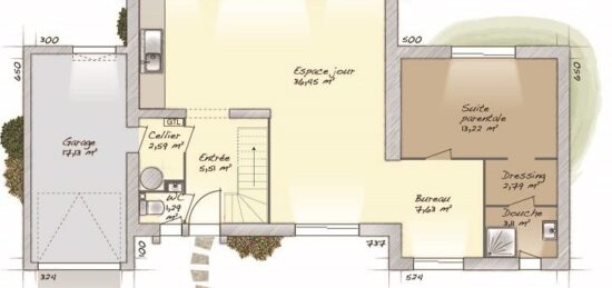
Surface habitable : 95 m²
Configuration : Séjour lumineux ouvert sur le jardin, 3 belles chambres dont une suite parentale avec dressing, une salle de bain et un WC séparé.
Architecture : Lignes modernes, grandes baies vitrées pour une luminosité optimale, et des prestations de qualité conforme aux dernières normes de construction.
Le cadre de vie privilégié :
Transports : Lignes de bus régulières à 2 minutes à pied. La gare RER D de Cesson est facilement accessible en quelques minutes en voiture.
Services : Écoles, commerces de proximité et services de santé à moins de 5 minutes en voiture.
Le budget total de ce projet est proposé à partir de [PRIX TOTAL DU PROJET] (terrain + construction + frais de notaire + taxes).
En tant que constructeur de maisons individuelles, Maisons Balency vous propose un service complet et personnalisé. Notre équipe de l'Agence d'Ormoy, spécialiste du secteur, vous accompagnera à chaque étape :
Recherche et étude du terrain.
Conception de votre projet en plans 2D/3D.
Chiffrage détaillé et transparent, de l'avant-projet à la signature du CCMI.
Contactez-nous dès maintenant pour une étude gratuite et sans engagement. Nous serons ravis de concrétiser votre rêve de construction.
Maisons Balency
Agence d'Ormoy
23 chemin de Tournenfils
91540 ORMOY
Annonce proposée par un Agent Commercial Partenaire.
Mentions légales
Terrain proposé par un partenaire foncier selon disponibilités et autorisation de publicité au prix de 144 000 €. Hors droit d'enregistrement et frais de notaire. Terrain + Maison proposés au prix de 530 000 € (Hors branchements et raccordements, papiers peints, peintures, revêtement de sol dans les chambres. Tarif modifiable sans préavis). Etiquette énergie : A. Différents modèles disponibles pour ce terrain. Assurances et garanties du constructeur (RC professionnelle, décennale, dommage ouvrage, garantie de remboursement de l'acompte, livraison à prix et délai convenu) : https://www.maisons-balency.fr/informations-legales/. HEXAOM Services est enregistré auprès de l'ORIAS en tant que Courtier en financement, Niveau 1, sous le numéro 14001345.Agence Maisons Balency de Ormoy (91540)
- Téléphone :
- 09 67 70 15 81
- Adressse :
- 23 chemin de Tournenfils - 1er étage
91540 Ormoy, France
