Maison neuve à
Boissise-le-Roi
(77310) Référence :
AM2450160_2
Prix du projet : Maison avec Terrain
prix 303 603 €
- 5 pièces
- 3 chambres
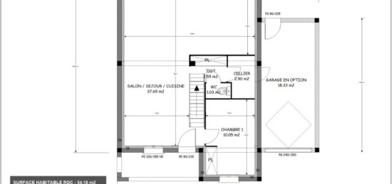
- Surface maison 90 m2
PROJET TERRAIN + MAISON + NOTAIRE + VIABILISATION = 303 603€
À vendre : à deux pas d'Évry-Courcouronnes, Maisons Balency Moret-Loing-et-Orvanne vous présente cette maison de 5 pièces de 90 m² et de 246 m² de terrain bénéficiant d'un emplacement privilégié dans Boissise-le-Roi (77310). Elle inclut trois chambres, une cuisine et une salle de bains.
Cette maison compte 2 niveaux. Elle est neuve.
La maison se situe dans un secteur attractif. Les écoles sont à moins de 10 minutes à pied. Côté transports, on trouve la station de RER Boissise-Le-Roi (ligne D) ainsi que la gare Boissise-le-Roi juste à côté. Il y a un tennis, trois commerces, une épicerie et une boucherie-charcuterie dans les environs.
Elle est proposée à l'achat pour 303 603 €.
N'hésitez pas à prendre contact avec Arnaud MOINE (tél : 06-40-48-40-55) pour toute question sur la maison. Concrétisez vos projets immobiliers avec Maisons Balency Moret-Loing-et-Orvanne.
Annonce proposée par un Agent Commercial Partenaire.
Mentions légales
Terrain proposé par un partenaire foncier selon disponibilités et autorisation de publicité au prix de 112 000 €. Hors droit d'enregistrement et frais de notaire. Terrain + Maison proposés au prix de 303 603 € (Hors branchements et raccordements, papiers peints, peintures, revêtement de sol dans les chambres. Tarif modifiable sans préavis). Etiquette énergie : A. Différents modèles disponibles pour ce terrain. Assurances et garanties du constructeur (RC professionnelle, décennale, dommage ouvrage, garantie de remboursement de l'acompte, livraison à prix et délai convenu) : https://www.maisons-balency.fr/informations-legales/. HEXAOM Services est enregistré auprès de l'ORIAS en tant que Courtier en financement, Niveau 1, sous le numéro 14001345.Agence Maisons Balency de Moret-sur-Loing (77250)
- Téléphone :
- 09 78 81 26 91
- Adressse :
- 96 avenue de Fontainebleau
77250 Moret-sur-Loing, France
