Maison neuve à
Boissise-le-Roi
(77310) Référence :
AM2450164_2
Prix du projet : Maison avec Terrain
prix 370 757 €
- 6 pièces
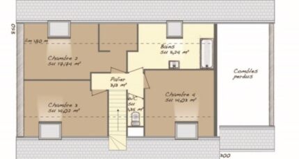
- 4 chambres
- Surface maison 117 m2
PROJET TERRAIN + MAISON + NOTAIRE + VIABILISATION = 370 757€
En vente : localisée à 16 km d'Évry-Courcouronnes, Maisons Balency Moret-Loing-et-Orvanne vous propose, bénéficiant d'un emplacement d'exception dans Boissise-le-Roi (77310), cette maison de 6 pièces de plain-pied de 117 m² et de 443 m² de terrain. Elle est composée de quatre chambres, d'une cuisine et de deux salles de bains.
Cette maison est neuve.
La maison se trouve dans un quartier prisé. Côté transports, on trouve la station de RER Boissise-Le-Roi (ligne D) ainsi que la gare Boissise-le-Roi dans un rayon de 1 km. Il y a un tennis, trois commerces, une boucherie-charcuterie et une épicerie dans les environs.
Son prix de vente est de 370 757 €.
N'hésitez pas à prendre contact avec Arnaud MOINE (06-40-48-40-55) pour toute question sur le bien, sur les modalités de vente ou sur les démarches à suivre.
Annonce proposée par un Agent Commercial Partenaire.
Mentions légales
Terrain proposé par un partenaire foncier selon disponibilités et autorisation de publicité au prix de 125 000 €. Hors droit d'enregistrement et frais de notaire. Terrain + Maison proposés au prix de 370 757 € (Hors branchements et raccordements, papiers peints, peintures, revêtement de sol dans les chambres. Tarif modifiable sans préavis). Etiquette énergie : A. Différents modèles disponibles pour ce terrain. Assurances et garanties du constructeur (RC professionnelle, décennale, dommage ouvrage, garantie de remboursement de l'acompte, livraison à prix et délai convenu) : https://www.maisons-balency.fr/informations-legales/. HEXAOM Services est enregistré auprès de l'ORIAS en tant que Courtier en financement, Niveau 1, sous le numéro 14001345.Agence Maisons Balency de Moret-sur-Loing (77250)
- Téléphone :
- 09 78 81 26 91
- Adressse :
- 96 avenue de Fontainebleau
77250 Moret-sur-Loing, France
