Maison neuve à
Boissy-le-Châtel
(77169) Référence :
MU2327932_8
Prix du projet : Maison avec Terrain
prix 274 000 €
- 6 pièces
- 4 chambres
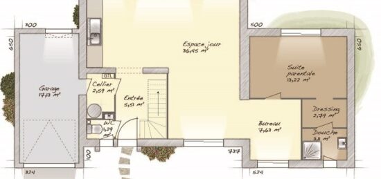
- Surface maison 109 m2
VENTE : maison de 6 pièces (109 m²) à Boissy-le-Châtel
IDÉALEMENT SITUÉE - MAISON 6 PIÈCES NEUVE
À vendre : à deux pas de la gare de Coulommiers (Paris à 1 h par le Transilien P), découvrez, idéalement située dans Boissy-le-Châtel (77169), cette maison de 6 pièces de 109 m² et de 712 m² de terrain.
C'est une maison de 2 niveaux. Son intérieur est composé de quatre chambres, d'une cuisine et de deux salles de bains. Cette maison est neuve.
Cette maison se trouve dans un quartier convoité. L'École Maternelle Etienne Dumas et l'École Élémentaire la Mare Garenne y sont implantées. Niveau transports en commun, il y a les gares Coulommiers et Mouroux à moins de 10 minutes en voiture. On trouve un tennis et un supermarché dans les environs.
Son prix de vente est de 274 000 €.
Prenez contact avec notre agence (URBANSKY Mylann : 06-23-32-28-23) pour toute information sur la maison, sur les modalités de vente ou sur les démarches à suivre.
Annonce proposée par un Agent Commercial Partenaire.
Mentions légales
Terrain proposé par un partenaire foncier selon disponibilités et autorisation de publicité au prix de 105 000 €. Hors droit d'enregistrement et frais de notaire. Maison proposée, avec un contrat de construction de maison individuelle, dans le cadre de la loi du 19/12/1990, au prix de 169 000 € (Hors branchements et raccordements, papiers peints, peintures, revêtement de sol dans les chambres, qui sont chiffrés dans les travaux qui restent à charge du client. Tarif modifiable sans préavis). Étiquette énergie : A. Différents modèles disponibles pour ce terrain. Assurances et garanties du constructeur comprises (RC professionnelle, décennale, dommage ouvrage).Agence Maisons Balency de Baillet-en-France (95560)
- Téléphone :
- 01 34 46 05 23
- Adressse :
- 81 rue de Paris
95560 Baillet-en-France, France
