Maison neuve à
Bolleville (76210) Référence : MJ2307292_1

Prix du projet : Maison avec Terrain

prix 299 000 €

  • 6 pièces
  • 5 chambres
  • Surface maison 114 m2

Bolleville : maison de 6 pièces (114 m²) à vendre
QUARTIER RECHERCHÉ - MAISON 6 PIÈCES NEUVE
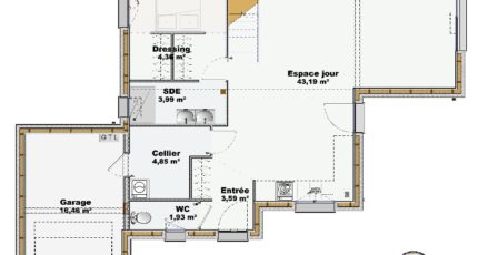
En vente : située à 15 km de la Manche, Maisons Balency Boos vous propose cette maison de 6 pièces de 114 m² et de 677 m² de terrain dans un quartier prisé de Bolleville (76210).
C'est une maison de 2 niveaux. Elle dispose de cinq chambres, d'une cuisine et de deux salles de bains. La maison est neuve.
Cette maison se trouve dans un secteur recherché. Une école primaire y est implantée. Côté transports en commun, il y a les gares Foucart-Alvimare et Bolbec-Nointot à moins de 10 minutes en voiture. L'autoroute A29 est accessible à 7 km. On trouve un commerce dans les environs.
Elle est à vendre pour la somme de 299 000 €
Prenez contact avec notre agence (Michael JOURDON) : 06.43.05.84.44 pour tout renseignement sur la maison, sur les modalités de vente ou sur les démarches à suivre. Maisons Balency Boos vous accompagne à toutes les étapes de l'achat et dans tous vos projets immobiliers.

Annonce proposée par un Agent Commercial Partenaire.

Mentions légales

Terrain proposé par un partenaire foncier selon disponibilités et autorisation de publicité au prix de 60 500 €. Hors droit d'enregistrement et frais de notaire. Terrain + Maison proposés au prix de 238 500 € (Hors branchements et raccordements, papiers peints, peintures, revêtement de sol dans les chambres. Tarif modifiable sans préavis). Etiquette énergie : A. Différents modèles disponibles pour ce terrain. Assurances et garanties du constructeur (RC professionnelle, décennale, dommage ouvrage, garantie de remboursement de l'acompte, livraison à prix et délai convenu) : https://www.maisons-balency.fr/informations-legales/. HEXAOM Services est enregistré auprès de l'ORIAS en tant que Courtier en financement, Niveau 1, sous le numéro 14001345.

Contactez l'agence de Boos

02 35 80 66 66

    * Champs obligatoires

    Vos informations sont traitées par HEXAOM et transmises à un conseiller commercial qui vous contactera afin de répondre à votre demande. Les plans et images présentés sur notre site sont la propriété d’HEXAOM et ne peuvent pas être reproduits sans son accord. Pour retrouver notre politique de protection des données personnelles et exercer vos droits conformément à la « loi informatique et liberté » cliquez-ici.