Maison neuve à
Bolleville (76210) Référence : MJ2307292_2

Prix du projet : Maison avec Terrain

prix 289 900 €

  • 5 pièces
  • 3 chambres
  • Surface maison 120 m2

VENTE : maison de 5 pièces (120 m²) à Bolleville
QUARTIER RECHERCHÉ - MAISON 5 PIÈCES NEUVE
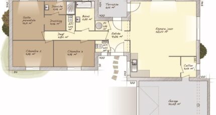
À vendre : située à 15 km de la Manche, votre agence Maisons Balency Boos est heureuse de vous présenter cette maison de 5 pièces de plain-pied de 120 m² dans un quartier attractif de Bolleville (76210). Elle inclut trois chambres, une cuisine et deux salles de bains.
Le terrain de la propriété s'étend sur 677 m².
La maison est neuve.
La maison se trouve dans un secteur convoité. Une école primaire y est implantée. Niveau transports en commun, il y a les gares Foucart-Alvimare et Bolbec-Nointot à moins de 10 minutes en voiture. On trouve un accès à l'autoroute A29 à 7 km. On trouve un commerce à quelques minutes.
Elle est proposée à l'achat pour 289 900 €.
N'hésitez pas à prendre contact avec Michael JOURDON (tél : 06.43.05.84.44) pour toute question sur la maison ou sur les démarches à suivre.

Annonce proposée par un Agent Commercial Partenaire.

Mentions légales

Terrain proposé par un partenaire foncier selon disponibilités et autorisation de publicité au prix de 60 500 €. Hors droit d'enregistrement et frais de notaire. Terrain + Maison proposés au prix de 229 400 € (Hors branchements et raccordements, papiers peints, peintures, revêtement de sol dans les chambres. Tarif modifiable sans préavis). Etiquette énergie : A. Différents modèles disponibles pour ce terrain. Assurances et garanties du constructeur (RC professionnelle, décennale, dommage ouvrage, garantie de remboursement de l'acompte, livraison à prix et délai convenu) : https://www.maisons-balency.fr/informations-legales/. HEXAOM Services est enregistré auprès de l'ORIAS en tant que Courtier en financement, Niveau 1, sous le numéro 14001345.

Contactez l'agence de Boos

02 35 80 66 66

    * Champs obligatoires

    Vos informations sont traitées par HEXAOM et transmises à un conseiller commercial qui vous contactera afin de répondre à votre demande. Les plans et images présentés sur notre site sont la propriété d’HEXAOM et ne peuvent pas être reproduits sans son accord. Pour retrouver notre politique de protection des données personnelles et exercer vos droits conformément à la « loi informatique et liberté » cliquez-ici.