Maison neuve à
Bonsecours (76240) Référence : AK2388805_8

Prix du projet : Maison avec Terrain

prix 285 000 €

  • 6 pièces
  • 3 chambres
  • Surface maison 90 m2

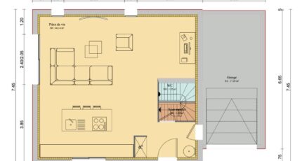
VENTE d'une maison de 6 pièces (90 m²) à Bonsecours
CENTRE-VILLE - MAISON 6 PIÈCES NEUVE
En vente : localisée à quelques kilomètres de Rouen, nous vous présentons cette maison de 6 pièces de 90 m² dans le centre-ville de Bonsecours (76240). Son intérieur dispose de trois chambres, d'une cuisine et d'une salle de bains.
Le terrain de la propriété est de 350 m².
Cette maison comporte 2 niveaux. Elle est neuve.
L'École Élémentaire José Maria d'Heredia, le Collège Emile Verhaeren et l'École Maternelle la Ferme du Plan se trouvent à moins de 10 minutes à pied, tout comme deux structures d'accueil pour les tout-petits. Côté transports, il y a six gares à moins de 10 minutes en voiture. Les autoroutes A150, A28 et A13 et les nationales N28, N338 et N138 sont accessibles à moins de 10 km. On trouve un tennis, une bibliothèque, un bowling, des commerces, des boulangeries, un supermarché, un bureau de poste et trois boucheries-charcuteries à proximité de la maison. Ne manquez pas le marché Place Loquet chaque vendredi matin.
Elle est à vendre pour la somme de 285 000 €.
Contactez Amane JOURDON (06-98-97-57-93) pour obtenir de plus amples renseignements sur la maison, sur les démarches à suivre et sur les modalités de vente.

Annonce proposée par un Agent Commercial Partenaire.

Mentions légales

Terrain proposé par un partenaire foncier selon disponibilités et autorisation de publicité au prix de 105 000 €. Hors droit d'enregistrement et frais de notaire. Terrain + Maison proposés au prix de 180 000 € (Hors branchements et raccordements, papiers peints, peintures, revêtement de sol dans les chambres. Tarif modifiable sans préavis). Etiquette énergie : A. Différents modèles disponibles pour ce terrain. Assurances et garanties du constructeur (RC professionnelle, décennale, dommage ouvrage, garantie de remboursement de l'acompte, livraison à prix et délai convenu) : https://www.maisons-balency.fr/informations-legales/. HEXAOM Services est enregistré auprès de l'ORIAS en tant que Courtier en financement, Niveau 1, sous le numéro 14001345.

Contactez l'agence de Boos

02 35 80 66 66

    * Champs obligatoires

    Vos informations sont traitées par HEXAOM et transmises à un conseiller commercial qui vous contactera afin de répondre à votre demande. Les plans et images présentés sur notre site sont la propriété d’HEXAOM et ne peuvent pas être reproduits sans son accord. Pour retrouver notre politique de protection des données personnelles et exercer vos droits conformément à la « loi informatique et liberté » cliquez-ici.