Maison neuve à
Boos (76520) Référence : MJ2253484_3

Prix du projet : Maison avec Terrain

prix 415 000 €

  • 4 pièces
  • 3 chambres
  • Surface maison 120 m2

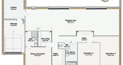
Maison F4 (120 m²) à vendre à Boos
QUARTIER RECHERCHÉ - MAISON 4 PIÈCES NEUVE
À quelques kilomètres de Rouen, à vendre nichée dans un quartier prisé de Boos (76520), nous sommes ravis de vous présenter cette maison de 4 pièces de plain-pied de 120 m².
Conçue de plain-pied, elle comporte trois chambres, une cuisine et deux salles de bains. La maison est neuve.
Le terrain du bien s'étend sur 1 300 m².
La maison se situe dans un secteur convoité. Le Collège Masséot Abaquesne, l'École Élémentaire Maurice Genevoix et l'École Maternelle le Petit Prince sont implantés à moins de 10 minutes à pied. Côté transports en commun, il y a cinq gares à moins de 10 minutes en voiture. La nationale N28 est accessible à 9 km. On trouve une bibliothèque, des commerces, trois boulangeries, un bureau de poste et deux boucheries-charcuteries à proximité.
Son prix de vente est de 415 000 €.
N'hésitez pas à prendre contact avec AMANE JOURDON (tél : 0698975793) pour obtenir de plus amples renseignements sur le bien.

Annonce proposée par un Agent Commercial Partenaire.

Mentions légales

Terrain proposé par un partenaire foncier selon disponibilités et autorisation de publicité au prix de 179 000 €. Hors droit d'enregistrement et frais de notaire. Maison proposée, avec un contrat de construction de maison individuelle, dans le cadre de la loi du 19/12/1990, au prix de 236 000 € (Hors branchements et raccordements, papiers peints, peintures, revêtement de sol dans les chambres, qui sont chiffrés dans les travaux qui restent à charge du client. Tarif modifiable sans préavis). Étiquette énergie : A. Différents modèles disponibles pour ce terrain. Assurances et garanties du constructeur comprises (RC professionnelle, décennale, dommage ouvrage).

Contactez l'agence de Boos

02 35 80 66 66

    * Champs obligatoires

    Vos informations sont traitées par HEXAOM et transmises à un conseiller commercial qui vous contactera afin de répondre à votre demande. Les plans et images présentés sur notre site sont la propriété d’HEXAOM et ne peuvent pas être reproduits sans son accord. Pour retrouver notre politique de protection des données personnelles et exercer vos droits conformément à la « loi informatique et liberté » cliquez-ici.