Maison neuve à
Boos (76520) Référence : MJ2253656_3

Prix du projet : Maison avec Terrain

prix 329 000 €

  • 4 pièces
  • 3 chambres
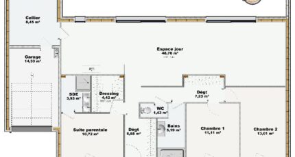
  • Surface maison 120 m2

VENTE d'une maison T4 (120 m²) à Saint-Aubin-Épinay
QUARTIER RECHERCHÉ - MAISON 4 PIÈCES NEUVE
En vente : située à quelques kilomètres de Rouen, votre agence Maisons Balency Boos est ravie de vous présenter, située dans un secteur convoité de Saint-Aubin-Épinay (76160), cette maison de 4 pièces de plain-pied de 120 m² et de 500 m² de terrain. Elle dispose de trois chambres, d'une cuisine et de deux salles de bains.
Cette maison est neuve.
La propriété est située dans un quartier attractif. Des écoles maternelles et élémentaires se trouvent à moins de 10 minutes à pied, tout comme dont l'École Maternelle l'Eau Vive. Niveau transports en commun, il y a quatre gares à moins de 10 minutes en voiture. Les autoroutes A28 et A150 et les nationales N28 et N338 sont accessibles à moins de 9 km.
Elle est à vendre pour la somme de 329 000 €.
Contactez notre constructeur (AMANE : 0698975793) pour obtenir de plus amples informations sur la maison, sur les démarches à suivre ou sur les modalités de vente. AMANE vous accompagne à toutes les étapes de l'achat et dans tous vos projets immobiliers.

Annonce proposée par un Agent Commercial Partenaire.

Mentions légales

Terrain proposé par un partenaire foncier selon disponibilités et autorisation de publicité au prix de 115 000 €. Hors droit d'enregistrement et frais de notaire. Maison proposée, avec un contrat de construction de maison individuelle, dans le cadre de la loi du 19/12/1990, au prix de 214 000 € (Hors branchements et raccordements, papiers peints, peintures, revêtement de sol dans les chambres, qui sont chiffrés dans les travaux qui restent à charge du client. Tarif modifiable sans préavis). Étiquette énergie : A. Différents modèles disponibles pour ce terrain. Assurances et garanties du constructeur comprises (RC professionnelle, décennale, dommage ouvrage).

Contactez l'agence de Boos

02 35 80 66 66

    * Champs obligatoires

    Vos informations sont traitées par HEXAOM et transmises à un conseiller commercial qui vous contactera afin de répondre à votre demande. Les plans et images présentés sur notre site sont la propriété d’HEXAOM et ne peuvent pas être reproduits sans son accord. Pour retrouver notre politique de protection des données personnelles et exercer vos droits conformément à la « loi informatique et liberté » cliquez-ici.