Maison neuve à
Bornambusc (76110) Référence : SEMA9018_9

Prix du projet : Maison avec Terrain

prix 349 000 €

  • 5 pièces
  • 3 chambres
  • Surface maison 120 m2

Maison de 5 pièces (120 m²) en vente à Bornambusc
PROCHE DU HAVRE - MAISON 5 PIÈCES NEUVE
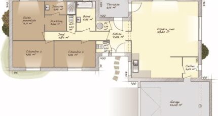
En vente à 14 km de la Manche et à quelques kilomètres du Havre, Maisons Balency Boos vous propose cette maison de 5 pièces de plain-pied de 120 m² à Bornambusc (76110). Elle comporte trois chambres, une cuisine et deux salles de bains.
Le terrain du bien est de 700 m².
Cette maison est neuve.
Niveau transports en commun, il y a trois gares (Virville-Manneville, Bréauté-Beuzeville et Étainhus-Saint-Romain) à moins de 10 minutes en voiture. L'autoroute A29 est accessible à 8 km. On trouve une bibliothèque à quelques minutes de la maison.
Elle est proposée à l'achat pour 349 000 €.
Prenez contact avec notre agence (Sébastien MASSON : 06-23-38-14-17) pour obtenir de plus amples informations sur cette maison, sur les démarches à suivre ou sur les modalités de vente.

Annonce proposée par un Agent Commercial Partenaire.

Mentions légales

Terrain proposé par un partenaire foncier selon disponibilités et autorisation de publicité au prix de 75 000 €. Hors droit d'enregistrement et frais de notaire. Terrain + Maison proposés au prix de 349 000 € (Hors branchements et raccordements, papiers peints, peintures, revêtement de sol dans les chambres. Tarif modifiable sans préavis). Etiquette énergie : A. Différents modèles disponibles pour ce terrain. Assurances et garanties du constructeur (RC professionnelle, décennale, dommage ouvrage, garantie de remboursement de l'acompte, livraison à prix et délai convenu) : https://www.maisons-balency.fr/informations-legales/. HEXAOM Services est enregistré auprès de l'ORIAS en tant que Courtier en financement, Niveau 1, sous le numéro 14001345.

Contactez l'agence de Boos

02 35 80 66 66

    * Champs obligatoires

    Vos informations sont traitées par HEXAOM et transmises à un conseiller commercial qui vous contactera afin de répondre à votre demande. Les plans et images présentés sur notre site sont la propriété d’HEXAOM et ne peuvent pas être reproduits sans son accord. Pour retrouver notre politique de protection des données personnelles et exercer vos droits conformément à la « loi informatique et liberté » cliquez-ici.