Maison neuve à
Bosc-Bérenger (76680) Référence : EL2316032_4

Prix du projet : Maison avec Terrain

prix 334 500 €

  • 6 pièces
  • 3 chambres
  • Surface maison 133 m2

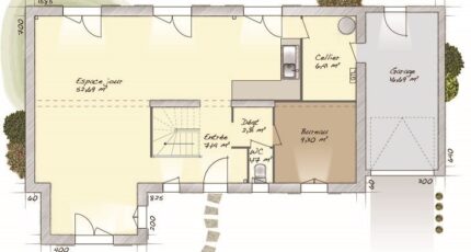
Bosc-Bérenger : maison de 6 pièces (133 m²) à vendre
IDÉALEMENT SITUÉE - MAISON 6 PIÈCES NEUVE
À 38 km de la Manche et à 25 km de Rouen, nous vous proposons cette maison de 6 pièces de 133 m² et de 1 405 m² de terrain en vente idéalement située dans Bosc-Bérenger (76680).
Cette maison compte 2 niveaux. Elle dispose de trois chambres, d'une cuisine et de deux salles de bains. La maison est neuve.
Cette maison est située dans un quartier prisé. Plusieurs établissements scolaires (maternelle, élémentaire, primaire et collège) sont implantés à moins de 10 minutes en voiture, tout comme une crèche à moins de 10 minutes à pied. Côté transports en commun, on trouve deux gares (Montérolier-Buchy et Longuerue-Vieux-Manoir) à moins de 10 minutes en voiture. Les autoroutes A28 et A29 sont accessibles à moins de 2 km. Il y a des bibliothèques, des tennis, des commerces, des supermarchés, des boulangeries, des épiceries et deux poissonneries à proximité.
Elle est à vendre pour la somme de 334 500 €.
Prenez contact avec notre agence (Aurélien LEOVANT : 02-35-80-66-66) pour toute question sur la maison.

Annonce proposée par un Agent Commercial Partenaire.

Mentions légales

Terrain proposé par un partenaire foncier selon disponibilités et autorisation de publicité au prix de 72 000 €. Hors droit d'enregistrement et frais de notaire. Maison proposée, avec un contrat de construction de maison individuelle, dans le cadre de la loi du 19/12/1990, au prix de 262 500 € (Hors branchements et raccordements, papiers peints, peintures, revêtement de sol dans les chambres, qui sont chiffrés dans les travaux qui restent à charge du client. Tarif modifiable sans préavis). Étiquette énergie : A. Différents modèles disponibles pour ce terrain. Assurances et garanties du constructeur comprises (RC professionnelle, décennale, dommage ouvrage).

Contactez l'agence de Boos

02 35 80 66 66

    * Champs obligatoires

    Vos informations sont traitées par HEXAOM et transmises à un conseiller commercial qui vous contactera afin de répondre à votre demande. Les plans et images présentés sur notre site sont la propriété d’HEXAOM et ne peuvent pas être reproduits sans son accord. Pour retrouver notre politique de protection des données personnelles et exercer vos droits conformément à la « loi informatique et liberté » cliquez-ici.