Maison neuve à
Bosc-Bérenger (76680) Référence : SEMA9055_11

Prix du projet : Maison avec Terrain

prix 402 000 €

  • 7 pièces
  • 5 chambres
  • Surface maison 170 m2

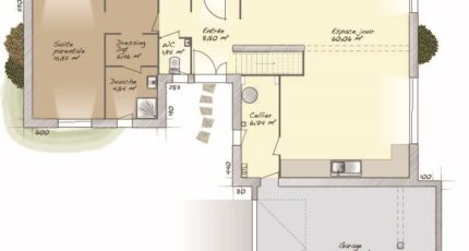
VENTE d'une maison de 7 pièces (170 m²) à Bosc-Bérenger
MAISON 7 PIÈCES NEUVE - PROCHE DE ROUEN
À vendre : à 38 km de la Manche et à 25 km de Rouen, nous sommes heureux de vous proposer à Bosc-Bérenger (76680), cette maison de 7 pièces de plain-pied de 170 m² et de 1 400 m² de terrain. Elle offre cinq chambres, une cuisine et trois salles de bains.
La maison est neuve.
Plusieurs établissements scolaires (maternelle, élémentaire, primaire et collège) se trouvent à moins de 10 minutes en voiture, tout comme une crèche à moins de 10 minutes à pied. Niveau transports, il y a deux gares (Montérolier-Buchy et Longuerue-Vieux-Manoir) à moins de 10 minutes en voiture. Les autoroutes A28 et A29 sont accessibles à moins de 2 km. On trouve des bibliothèques, des tennis, des commerces, des supermarchés, des boulangeries, des boucheries-charcuteries et deux poissonneries à quelques minutes.
Elle est à vendre pour la somme de 402 000 €.
N'hésitez pas à prendre contact avec notre agence (MASSON Sébastien : 06-23-38-14-17) pour toute question sur la maison ou sur les modalités de vente. Concrétisez vos projets immobiliers avec Maisons Balency Boos.

Annonce proposée par un Agent Commercial Partenaire.

Mentions légales

Terrain proposé par un partenaire foncier selon disponibilités et autorisation de publicité au prix de 72 000 €. Hors droit d'enregistrement et frais de notaire. Terrain + Maison proposés au prix de 402 000 € (Hors branchements et raccordements, papiers peints, peintures, revêtement de sol dans les chambres. Tarif modifiable sans préavis). Etiquette énergie : A. Différents modèles disponibles pour ce terrain. Assurances et garanties du constructeur (RC professionnelle, décennale, dommage ouvrage, garantie de remboursement de l'acompte, livraison à prix et délai convenu) : https://www.maisons-balency.fr/informations-legales/. HEXAOM Services est enregistré auprès de l'ORIAS en tant que Courtier en financement, Niveau 1, sous le numéro 14001345.

Contactez l'agence de Boos

02 35 80 66 66

    * Champs obligatoires

    Vos informations sont traitées par HEXAOM et transmises à un conseiller commercial qui vous contactera afin de répondre à votre demande. Les plans et images présentés sur notre site sont la propriété d’HEXAOM et ne peuvent pas être reproduits sans son accord. Pour retrouver notre politique de protection des données personnelles et exercer vos droits conformément à la « loi informatique et liberté » cliquez-ici.