Maison neuve à
Bosc-Bérenger (76680) Référence : SEMA9055_7

Prix du projet : Maison avec Terrain

prix 266 000 €

  • 9 pièces
  • 5 chambres
  • Surface maison 124 m2

VENTE d'une maison T9 (124 m²) à Bosc-Bérenger
MAISON 9 PIÈCES NEUVE - PROCHE DE ROUEN
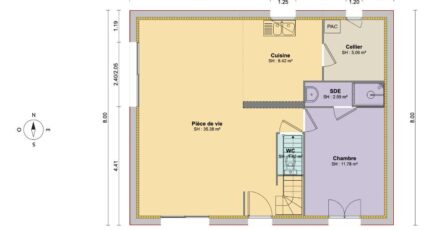
À 38 km de la Manche et à quelques kilomètres de Rouen, notre agence Maisons Balency Boos est heureuse de vous présenter cette maison de 9 pièces de 124 m² et de 1 400 m² de terrain en vente à Bosc-Bérenger (76680).
Cette maison comporte 2 niveaux. Elle inclut cinq chambres, une cuisine et trois salles de bains. Cette maison est neuve.
Plusieurs écoles (maternelle, élémentaire, primaire et collège) sont implantées à moins de 10 minutes en voiture, tout comme une structure d'accueil pour la petite enfance à moins de 10 minutes à pied. Niveau transports en commun, on trouve deux gares (Montérolier-Buchy et Longuerue-Vieux-Manoir) à moins de 10 minutes en voiture. Les autoroutes A28 et A29 sont accessibles à moins de 2 km. Il y a des bibliothèques, des tennis, des commerces, des supermarchés, des boulangeries, des boucheries-charcuteries et trois bureaux de poste à quelques minutes du logement.
Elle est proposée à l'achat pour 266 000 €.
Contactez Sébastien MASSON (06-23-38-14-17) pour toute question sur la maison, sur les démarches à suivre ou sur les modalités de vente.

Annonce proposée par un Agent Commercial Partenaire.

Mentions légales

Terrain proposé par un partenaire foncier selon disponibilités et autorisation de publicité au prix de 72 000 €. Hors droit d'enregistrement et frais de notaire. Terrain + Maison proposés au prix de 266 000 € (Hors branchements et raccordements, papiers peints, peintures, revêtement de sol dans les chambres. Tarif modifiable sans préavis). Etiquette énergie : A. Différents modèles disponibles pour ce terrain. Assurances et garanties du constructeur (RC professionnelle, décennale, dommage ouvrage, garantie de remboursement de l'acompte, livraison à prix et délai convenu) : https://www.maisons-balency.fr/informations-legales/. HEXAOM Services est enregistré auprès de l'ORIAS en tant que Courtier en financement, Niveau 1, sous le numéro 14001345.

Contactez l'agence de Boos

02 35 80 66 66

    * Champs obligatoires

    Vos informations sont traitées par HEXAOM et transmises à un conseiller commercial qui vous contactera afin de répondre à votre demande. Les plans et images présentés sur notre site sont la propriété d’HEXAOM et ne peuvent pas être reproduits sans son accord. Pour retrouver notre politique de protection des données personnelles et exercer vos droits conformément à la « loi informatique et liberté » cliquez-ici.