Maison neuve à
Bosc-Bérenger (76680) Référence : KB2440631_2

Prix du projet : Maison avec Terrain

prix 159 000 €

  • 4 pièces
  • 2 chambres
  • Surface maison 70 m2

Bosc-Bérenger : maison T4 (70 m²) en vente
IDÉALEMENT SITUÉE - MAISON 4 PIÈCES NEUVE
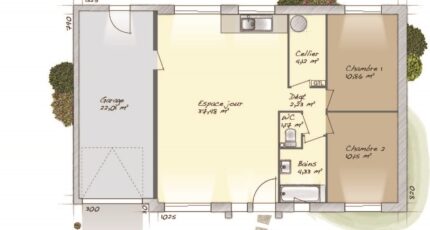
À vendre : à 38 km de la Manche et à deux pas de Rouen, votre agence Maisons Balency Boos est heureuse de vous proposer, idéalement située dans Bosc-Bérenger (76680), cette maison de 4 pièces de plain-pied de 70 m². Son intérieur offre deux chambres, une cuisine et une salle de bains.
Le terrain de cette maison s'étend sur 1 200 m².
La maison est neuve.
Cette propriété se trouve dans un quartier convoité. Plusieurs écoles (maternelle, élémentaire, primaire et collège) sont implantées à moins de 10 minutes en voiture, tout comme une structure d'accueil pour les enfants en bas âge à moins de 10 minutes à pied. Niveau transports, on trouve deux gares (Montérolier-Buchy et Longuerue-Vieux-Manoir) à moins de 10 minutes en voiture. Il y a des bibliothèques, des tennis, des commerces, des supermarchés, des boulangeries, trois bureaux de poste et deux poissonneries à quelques minutes du bien.
Elle est proposée à l'achat pour 159 000 €.
Prenez contact avec notre constructeur (BAZIZ Kamel : 07-80-36-63-82) pour obtenir de plus amples informations sur la maison, sur les démarches à suivre ou sur les modalités de vente.

Annonce proposée par un Agent Commercial Partenaire.

Mentions légales

Terrain proposé par un partenaire foncier selon disponibilités et autorisation de publicité au prix de 42 000 €. Hors droit d'enregistrement et frais de notaire. Terrain + Maison proposés au prix de 159 000 € (Hors branchements et raccordements, papiers peints, peintures, revêtement de sol dans les chambres. Tarif modifiable sans préavis). Etiquette énergie : A. Différents modèles disponibles pour ce terrain. Assurances et garanties du constructeur (RC professionnelle, décennale, dommage ouvrage, garantie de remboursement de l'acompte, livraison à prix et délai convenu) : https://www.maisons-balency.fr/informations-legales/. HEXAOM Services est enregistré auprès de l'ORIAS en tant que Courtier en financement, Niveau 1, sous le numéro 14001345.

Contactez l'agence de Boos

02 35 80 66 66

    * Champs obligatoires

    Vos informations sont traitées par HEXAOM et transmises à un conseiller commercial qui vous contactera afin de répondre à votre demande. Les plans et images présentés sur notre site sont la propriété d’HEXAOM et ne peuvent pas être reproduits sans son accord. Pour retrouver notre politique de protection des données personnelles et exercer vos droits conformément à la « loi informatique et liberté » cliquez-ici.