Maison neuve à
Bosc-le-Hard (76850) Référence : RC2350458_3

Prix du projet : Maison avec Terrain

prix 255 396 €

  • 6 pièces
  • 4 chambres
  • Surface maison 98 m2

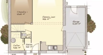
A construire : maison F6 (98 m²) à Bosc-le-Hard
IDÉALEMENT SITUÉE - MAISON 6 PIÈCES NEUVE
En vente à 35 km de la Manche et à 21 km de Rouen, idéalement située dans Bosc-le-Hard (76850), Maisons Balency Boos vous présente cette maison de 6 pièces de 98 m² et de 555 m² de terrain. Son intérieur offre quatre chambres, une cuisine et une salle de bains.
Cette maison possède 2 niveaux. Elle est neuve.
La maison se trouve dans un quartier recherché. L'École Primaire Guy de Maupassant est implantée à moins de 10 minutes à pied. Côté transports en commun, on trouve deux gares (Clères et Saint-Victor-l'Abbaye) à moins de 10 minutes en voiture. Les autoroutes A28, A29 et A151 et la nationale N27 sont accessibles à moins de 10 km. Il y a un tennis, une bibliothèque, des commerces, une boulangerie, deux supermarchés, un bureau de poste et une boucherie-charcuterie à proximité.
Elle est à vendre pour la somme de 255 396 €.
Contactez notre agence (RENIER Célia : 07-62-90-87-77) pour obtenir de plus amples renseignements sur la propriété. Maisons Balency Boos vous accompagne à toutes les étapes de votre projet et dans tous vos projets immobiliers.

Annonce proposée par un Agent Commercial Partenaire.

Mentions légales

Terrain proposé par un partenaire foncier selon disponibilités et autorisation de publicité au prix de 55 000 €. Hors droit d'enregistrement et frais de notaire. Maison proposée, avec un contrat de construction de maison individuelle, dans le cadre de la loi du 19/12/1990, au prix de 200 396 € (Hors branchements et raccordements, papiers peints, peintures, revêtement de sol dans les chambres, qui sont chiffrés dans les travaux qui restent à charge du client. Tarif modifiable sans préavis). Étiquette énergie : A. Différents modèles disponibles pour ce terrain. Assurances et garanties du constructeur comprises (RC professionnelle, décennale, dommage ouvrage).

Contactez l'agence de Boos

02 35 80 66 66

    * Champs obligatoires

    Vos informations sont traitées par HEXAOM et transmises à un conseiller commercial qui vous contactera afin de répondre à votre demande. Les plans et images présentés sur notre site sont la propriété d’HEXAOM et ne peuvent pas être reproduits sans son accord. Pour retrouver notre politique de protection des données personnelles et exercer vos droits conformément à la « loi informatique et liberté » cliquez-ici.