Maison neuve à
Bosc-le-Hard (76850) Référence : RC2350458_4

Prix du projet : Maison avec Terrain

prix 377 393 €

  • 7 pièces
  • 4 chambres
  • Surface maison 160 m2

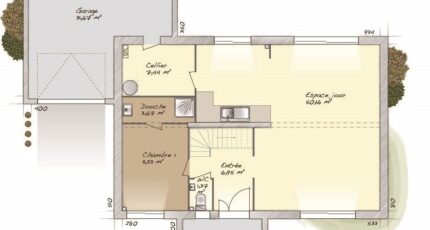
Maison F7 (160 m²) à construire à Bosc-le-Hard
IDÉALEMENT SITUÉE - MAISON 7 PIÈCES NEUVE
À 35 km de la Manche et à deux pas de Rouen, votre agence Maisons Balency Boos est heureuse de vous proposer à vendre, idéalement située dans Bosc-le-Hard (76850), cette maison de 7 pièces de 160 m². Elle se divise en quatre chambres, une cuisine et deux salles de bains.
Le terrain de la maison est de 555 m².
Cette maison comporte 2 niveaux. Elle est neuve.
La maison est située dans un secteur convoité. L'École Primaire Guy de Maupassant se trouve à moins de 10 minutes à pied. Niveau transports en commun, il y a deux gares (Clères et Saint-Victor-l'Abbaye) à moins de 10 minutes en voiture. Les autoroutes A28, A29 et A151 et la nationale N27 sont accessibles à moins de 10 km. On trouve un tennis, une bibliothèque, des commerces, une boulangerie, deux supermarchés, une boucherie-charcuterie et deux poissonneries à quelques minutes du logement.
Elle est proposée à l'achat pour 377 393 €.
Prenez contact avec notre constructeur (Célia RENIER : 07-62-90-87-77) pour obtenir de plus amples renseignements sur la maison. Maisons Balency Boos vous accompagne dans tous vos projets immobiliers et dans toutes vos démarches.

Annonce proposée par un Agent Commercial Partenaire.

Mentions légales

Terrain proposé par un partenaire foncier selon disponibilités et autorisation de publicité au prix de 55 000 €. Hors droit d'enregistrement et frais de notaire. Terrain + Maison proposés au prix de 322 393 € (Hors branchements et raccordements, papiers peints, peintures, revêtement de sol dans les chambres. Tarif modifiable sans préavis). Etiquette énergie : A. Différents modèles disponibles pour ce terrain. Assurances et garanties du constructeur (RC professionnelle, décennale, dommage ouvrage, garantie de remboursement de l'acompte, livraison à prix et délai convenu) : https://www.maisons-balency.fr/informations-legales/. HEXAOM Services est enregistré auprès de l'ORIAS en tant que Courtier en financement, Niveau 1, sous le numéro 14001345.

Contactez l'agence de Boos

02 35 80 66 66

    * Champs obligatoires

    Vos informations sont traitées par HEXAOM et transmises à un conseiller commercial qui vous contactera afin de répondre à votre demande. Les plans et images présentés sur notre site sont la propriété d’HEXAOM et ne peuvent pas être reproduits sans son accord. Pour retrouver notre politique de protection des données personnelles et exercer vos droits conformément à la « loi informatique et liberté » cliquez-ici.