Maison neuve à
Le Bosc-Roger-en-Roumois (27670) Référence : EL2321483_1

Prix du projet : Maison avec Terrain

prix 170 000 €

  • 4 pièces
  • 2 chambres
  • Surface maison 50 m2

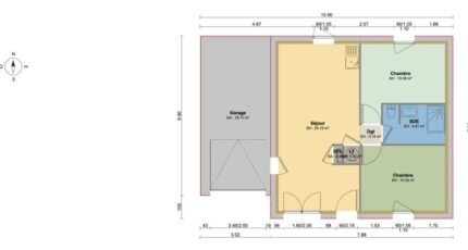
VENTE d'une maison F4 (50 m²) à Bosroumois
EMPLACEMENT PRIVILÉGIÉ - MAISON 4 PIÈCES NEUVE
En vente : à deux pas de Rouen, Maisons Balency Boos vous propose cette maison de 4 pièces de plain-pied de 50 m² et de 500 m² de terrain bénéficiant d'un emplacement privilégié dans Bosroumois (27670). Elle dispose de deux chambres, d'une cuisine et d'une salle de bains.
La maison est neuve.
La maison se trouve dans un secteur prisé. L'École Élémentaire René Bellanger et l'École Maternelle le Petit Prince sont implantées à moins de 10 minutes à pied. Côté transports en commun, il y a deux gares (Elbeuf-Saint-Aubin et Bourgtheroulde-Thuit-Hébert) à moins de 10 minutes en voiture. Les autoroutes A13 et A139 et la nationale N138 sont accessibles à moins de 10 km. On trouve un tennis, une bibliothèque, deux commerces, une boulangerie, une boucherie-charcuterie, une supérette et un bureau de poste à proximité du bien.
Elle est à vendre pour la somme de 170 000 €.
Contactez Dany LEOVANT (tél : 06-09-43-87-49) pour plus de renseignements sur la maison, sur les modalités de vente ou sur les démarches à suivre.

Annonce proposée par un Agent Commercial Partenaire.

Mentions légales

Terrain proposé par un partenaire foncier selon disponibilités et autorisation de publicité au prix de 65 000 €. Hors droit d'enregistrement et frais de notaire. Terrain + Maison proposés au prix de 105 000 € (Hors branchements et raccordements, papiers peints, peintures, revêtement de sol dans les chambres. Tarif modifiable sans préavis). Etiquette énergie : A. Différents modèles disponibles pour ce terrain. Assurances et garanties du constructeur (RC professionnelle, décennale, dommage ouvrage, garantie de remboursement de l'acompte, livraison à prix et délai convenu) : https://www.maisons-balency.fr/informations-legales/. HEXAOM Services est enregistré auprès de l'ORIAS en tant que Courtier en financement, Niveau 1, sous le numéro 14001345.

Contactez l'agence de Boos

02 35 80 66 66

    * Champs obligatoires

    Vos informations sont traitées par HEXAOM et transmises à un conseiller commercial qui vous contactera afin de répondre à votre demande. Les plans et images présentés sur notre site sont la propriété d’HEXAOM et ne peuvent pas être reproduits sans son accord. Pour retrouver notre politique de protection des données personnelles et exercer vos droits conformément à la « loi informatique et liberté » cliquez-ici.