Maison neuve à
Le Bosc-Roger-en-Roumois (27670) Référence : KXA2317277_4

Prix du projet : Maison avec Terrain

prix 266 000 €

  • 6 pièces
  • 4 chambres
  • Surface maison 117 m2

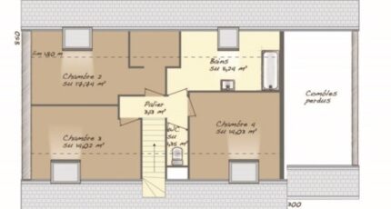
Maison F6 (117 m²) en vente à Bosroumois
MAISON 6 PIÈCES NEUVE - PROCHE DE ROUEN
À vendre : située à quelques kilomètres de Rouen, nous vous présentons cette maison de 6 pièces de plain-pied de 117 m² à Bosroumois (27670).
Son intérieur est composé de quatre chambres, d'une cuisine et de deux salles de bains. Cette maison est neuve.
Le terrain du bien s'étend sur 705 m².
L'École Élémentaire René Bellanger et l'École Maternelle le Petit Prince sont implantées à moins de 10 minutes à pied. Côté transports, il y a deux gares (Elbeuf-Saint-Aubin et Bourgtheroulde-Thuit-Hébert) à moins de 10 minutes en voiture. Les autoroutes A13 et A139 et la nationale N138 sont accessibles à moins de 10 km. On trouve un tennis, une bibliothèque, deux commerces, une boulangerie, une supérette, une boucherie-charcuterie et un bureau de poste dans les environs.
Son prix de vente est de 266 000 €.
Contactez notre agence (XAVIER ALVES Kévin : 06-58-91-13-87) pour plus de renseignements sur le bien, sur les démarches à suivre ou sur les modalités de vente.

Annonce proposée par un Agent Commercial Partenaire.

Mentions légales

Terrain proposé par un partenaire foncier selon disponibilités et autorisation de publicité au prix de 60 000 €. Hors droit d'enregistrement et frais de notaire. Terrain + Maison proposés au prix de 206 000 € (Hors branchements et raccordements, papiers peints, peintures, revêtement de sol dans les chambres. Tarif modifiable sans préavis). Etiquette énergie : A. Différents modèles disponibles pour ce terrain. Assurances et garanties du constructeur (RC professionnelle, décennale, dommage ouvrage, garantie de remboursement de l'acompte, livraison à prix et délai convenu) : https://www.maisons-balency.fr/informations-legales/. HEXAOM Services est enregistré auprès de l'ORIAS en tant que Courtier en financement, Niveau 1, sous le numéro 14001345.

Contactez l'agence de Boos

02 35 80 66 66

    * Champs obligatoires

    Vos informations sont traitées par HEXAOM et transmises à un conseiller commercial qui vous contactera afin de répondre à votre demande. Les plans et images présentés sur notre site sont la propriété d’HEXAOM et ne peuvent pas être reproduits sans son accord. Pour retrouver notre politique de protection des données personnelles et exercer vos droits conformément à la « loi informatique et liberté » cliquez-ici.