Maison neuve à
Le Bosc-Roger-en-Roumois (27670) Référence : KXA2408365_3

Prix du projet : Maison avec Terrain

prix 274 500 €

  • 6 pièces
  • 4 chambres
  • Surface maison 117 m2

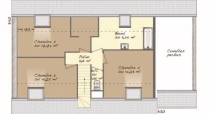
Maison F6 (117 m²) à vendre à Bosroumois
PROCHE DE ROUEN - MAISON 6 PIÈCES NEUVE
À vendre à quelques kilomètres de Rouen, à Bosroumois (27670), découvrez cette maison de 6 pièces de plain-pied de 117 m². Son intérieur offre quatre chambres, une cuisine et deux salles de bains.
Le terrain du bien est de 500 m².
La maison est neuve.
Il y a l'École Élémentaire René Bellanger et l'École Maternelle le Petit Prince à moins de 10 minutes à pied. Niveau transports en commun, on trouve les gares Elbeuf-Saint-Aubin et Bourgtheroulde-Thuit-Hébert à moins de 10 minutes en voiture. Les autoroutes A13 et A139 et la nationale N138 sont accessibles à moins de 10 km. Il y a un tennis, une bibliothèque, deux commerces, une boulangerie, une supérette, une boucherie-charcuterie et un bureau de poste à proximité.
Son prix de vente est de 274 500 €.
N'hésitez pas à prendre contact avec notre agence (Kévin XAVIER ALVES : 06-58-91-13-87) pour toute information sur la maison, sur les modalités de vente ou sur les démarches à suivre.

Annonce proposée par un Agent Commercial Partenaire.

Mentions légales

Terrain proposé par un partenaire foncier selon disponibilités et autorisation de publicité au prix de 65 000 €. Hors droit d'enregistrement et frais de notaire. Terrain + Maison proposés au prix de 274 500 € (Hors branchements et raccordements, papiers peints, peintures, revêtement de sol dans les chambres. Tarif modifiable sans préavis). Etiquette énergie : A. Différents modèles disponibles pour ce terrain. Assurances et garanties du constructeur (RC professionnelle, décennale, dommage ouvrage, garantie de remboursement de l'acompte, livraison à prix et délai convenu) : https://www.maisons-balency.fr/informations-legales/. HEXAOM Services est enregistré auprès de l'ORIAS en tant que Courtier en financement, Niveau 1, sous le numéro 14001345.

Contactez l'agence de Boos

02 35 80 66 66

    * Champs obligatoires

    Vos informations sont traitées par HEXAOM et transmises à un conseiller commercial qui vous contactera afin de répondre à votre demande. Les plans et images présentés sur notre site sont la propriété d’HEXAOM et ne peuvent pas être reproduits sans son accord. Pour retrouver notre politique de protection des données personnelles et exercer vos droits conformément à la « loi informatique et liberté » cliquez-ici.