Maison neuve à
Bouelles (76270) Référence : EL2340771_2

Prix du projet : Maison avec Terrain

prix 237 400 €

  • 5 pièces
  • 3 chambres
  • Surface maison 90 m2

VENTE d'une maison de 5 pièces (90 m²) à Bouelles
IDÉALEMENT SITUÉE - MAISON 5 PIÈCES NEUVE
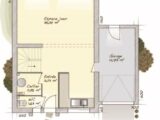
En vente : située à 41 km de la Manche, Maisons Balency Boos vous propose cette maison de 5 pièces de 90 m² et de 1 100 m² de terrain idéalement située dans Bouelles (76270). Elle se divise en trois chambres, une cuisine et une salle de bains.
Il s'agit d'une maison de 2 niveaux. Elle est neuve.
La maison se situe dans un quartier recherché. Une école élémentaire y est implantée. Niveau transports en commun, on trouve la gare Serqueux à moins de 10 minutes en voiture. Les autoroutes A28 et A29 sont accessibles à moins de 4 km.
Son prix de vente est de 237 400 €.
Contactez notre agence (LEOVANT Aurélien : 02-35-80-66-66) pour obtenir de plus amples renseignements sur la maison ou sur les modalités de vente.

Annonce proposée par un Agent Commercial Partenaire.

Mentions légales

Terrain proposé par un partenaire foncier selon disponibilités et autorisation de publicité au prix de 45 500 €. Hors droit d'enregistrement et frais de notaire. Terrain + Maison proposés au prix de 191 900 € (Hors branchements et raccordements, papiers peints, peintures, revêtement de sol dans les chambres. Tarif modifiable sans préavis). Etiquette énergie : A. Différents modèles disponibles pour ce terrain. Assurances et garanties du constructeur (RC professionnelle, décennale, dommage ouvrage, garantie de remboursement de l'acompte, livraison à prix et délai convenu) : https://www.maisons-balency.fr/informations-legales/. HEXAOM Services est enregistré auprès de l'ORIAS en tant que Courtier en financement, Niveau 1, sous le numéro 14001345.

Contactez l'agence de Boos

02 35 80 66 66

    * Champs obligatoires

    Vos informations sont traitées par HEXAOM et transmises à un conseiller commercial qui vous contactera afin de répondre à votre demande. Les plans et images présentés sur notre site sont la propriété d’HEXAOM et ne peuvent pas être reproduits sans son accord. Pour retrouver notre politique de protection des données personnelles et exercer vos droits conformément à la « loi informatique et liberté » cliquez-ici.