Maison neuve à
Bouelles (76270) Référence : EL2340771_5

Prix du projet : Maison avec Terrain

prix 365 200 €

  • 7 pièces
  • 5 chambres
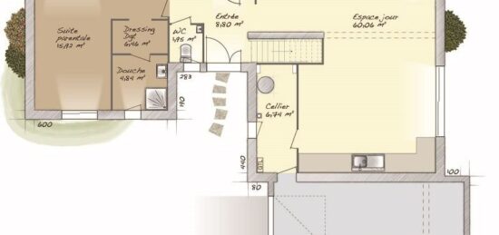
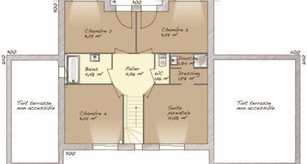
  • Surface maison 125 m2

VENTE : maison T7 (125 m²) à Bouelles
IDÉALEMENT SITUÉE - MAISON 7 PIÈCES NEUVE
En vente : localisée à 41 km de la Manche, découvrez, idéalement située dans Bouelles (76270), cette maison de 7 pièces de 125 m².
Cette maison compte 2 niveaux. Son intérieur offre cinq chambres, une cuisine et trois salles de bains. Cette maison est neuve.
Le terrain du bien s'étend sur 1 100 m².
La maison se situe dans un quartier attractif. On y trouve une école élémentaire. Côté transports en commun, on trouve la gare Serqueux à moins de 10 minutes en voiture. Les autoroutes A28 et A29 sont accessibles à moins de 4 km.
Elle est proposée à l'achat pour 365 200 €.
Contactez notre agence (LEOVANT Aurélien : 02-35-80-66-66) pour tout renseignement sur la maison, sur les modalités de vente et sur les démarches à suivre.

Annonce proposée par un Agent Commercial Partenaire.

Mentions légales

Terrain proposé par un partenaire foncier selon disponibilités et autorisation de publicité au prix de 45 500 €. Hors droit d'enregistrement et frais de notaire. Terrain + Maison proposés au prix de 319 700 € (Hors branchements et raccordements, papiers peints, peintures, revêtement de sol dans les chambres. Tarif modifiable sans préavis). Etiquette énergie : A. Différents modèles disponibles pour ce terrain. Assurances et garanties du constructeur (RC professionnelle, décennale, dommage ouvrage, garantie de remboursement de l'acompte, livraison à prix et délai convenu) : https://www.maisons-balency.fr/informations-legales/. HEXAOM Services est enregistré auprès de l'ORIAS en tant que Courtier en financement, Niveau 1, sous le numéro 14001345.

Contactez l'agence de Boos

02 35 80 66 66

    * Champs obligatoires

    Vos informations sont traitées par HEXAOM et transmises à un conseiller commercial qui vous contactera afin de répondre à votre demande. Les plans et images présentés sur notre site sont la propriété d’HEXAOM et ne peuvent pas être reproduits sans son accord. Pour retrouver notre politique de protection des données personnelles et exercer vos droits conformément à la « loi informatique et liberté » cliquez-ici.