Maison neuve à
Bouelles (76270) Référence : SEMA9015_3

Prix du projet : Maison avec Terrain

prix 199 000 €

  • 5 pièces
  • 3 chambres
  • Surface maison 76 m2

Maison T5 (76 m²) à vendre à Bouelles
MAISON 5 PIÈCES NEUVE
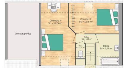
À 41 km de la Manche, à vendre à Bouelles (76270), Maisons Balency Boos vous propose cette maison de 5 pièces de 76 m². Son intérieur inclut trois chambres, une cuisine et une salle de bains.
Le terrain de la propriété est de 1 800 m².
Cette maison possède 2 niveaux. Elle est neuve.
Une école élémentaire est implantée dans le quartier. Côté transports en commun, il y a la gare Serqueux à moins de 10 minutes en voiture. Les autoroutes A28 et A29 sont accessibles à moins de 4 km.
Elle est à vendre pour la somme de 199 000 €.
Contactez notre agence (Sébastien MASSON : 06-23-38-14-17) pour plus d'informations sur la maison. Maisons Balency Boos est là pour vous accompagner à toutes les étapes de l'achat.

Annonce proposée par un Agent Commercial Partenaire.

Mentions légales

Terrain proposé par un partenaire foncier selon disponibilités et autorisation de publicité au prix de 50 000 €. Hors droit d'enregistrement et frais de notaire. Maison proposée, avec un contrat de construction de maison individuelle, dans le cadre de la loi du 19/12/1990, au prix de 149 000 € (Hors branchements et raccordements, papiers peints, peintures, revêtement de sol dans les chambres, qui sont chiffrés dans les travaux qui restent à charge du client. Tarif modifiable sans préavis). Étiquette énergie : A. Différents modèles disponibles pour ce terrain. Assurances et garanties du constructeur comprises (RC professionnelle, décennale, dommage ouvrage).

Contactez l'agence de Boos

02 35 80 66 66

    * Champs obligatoires

    Vos informations sont traitées par HEXAOM et transmises à un conseiller commercial qui vous contactera afin de répondre à votre demande. Les plans et images présentés sur notre site sont la propriété d’HEXAOM et ne peuvent pas être reproduits sans son accord. Pour retrouver notre politique de protection des données personnelles et exercer vos droits conformément à la « loi informatique et liberté » cliquez-ici.