Maison neuve à
Boullay-les-Troux
(91470) Référence :
TD2305262_3
Prix du projet : Maison avec Terrain
prix 520 000 €
- 8 pièces
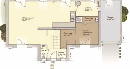
- 5 chambres
- Surface maison 145 m2
Maison F8 (145 m²) en vente à Boullay-les-Troux
IDÉALEMENT SITUÉE - MAISON 8 PIÈCES NEUVE
À quelques minutes de la station Saint-Rémy-lès-Chevreuse (Paris à 35 min par le RER B), votre agence Maisons Balency Coignières est ravie de vous présenter cette maison de 8 pièces de 145 m² idéalement située dans Boullay-les-Troux (91470). Elle offre cinq chambres, une cuisine et trois salles de bains.
Le terrain du bien s'étend sur 565 m².
Il s'agit d'une maison de 2 niveaux. Elle est neuve.
La maison se trouve dans un secteur recherché. Il y a l'École Primaire Jean-Theodore Lepeintre à moins de 10 minutes à pied. Niveau transports, on trouve la ligne de RER B (Saint-Rémy-Lès-Chevreuse) à moins de 10 minutes en voiture. Il y a une bibliothèque à proximité.
Elle est à vendre pour la somme de 520 000 €.
Prenez contact avec notre constructeur (DUTEURTRE Thibault : 06-23-41-73-81) pour toute information sur la maison ou sur les modalités de vente. Maisons Balency Coignières vous accompagne à toutes les étapes de votre projet et dans toutes vos démarches.
Annonce proposée par un Agent Commercial Partenaire.
Mentions légales
Terrain proposé par un partenaire foncier selon disponibilités et autorisation de publicité au prix de 185 000 €. Hors droit d'enregistrement et frais de notaire. Maison proposée, avec un contrat de construction de maison individuelle, dans le cadre de la loi du 19/12/1990, au prix de 335 000 € (Hors branchements et raccordements, papiers peints, peintures, revêtement de sol dans les chambres, qui sont chiffrés dans les travaux qui restent à charge du client. Tarif modifiable sans préavis). Étiquette énergie : A. Différents modèles disponibles pour ce terrain. Assurances et garanties du constructeur comprises (RC professionnelle, décennale, dommage ouvrage).Agence Maisons Balency de Coignières (78310)
- Téléphone :
- 01 34 61 42 59
- Adressse :
- Domexpo Ouest
78310 Coignières, France
