Maison neuve à
Bouquetot (27310) Référence : KB2353782_2

Prix du projet : Maison avec Terrain

prix 290 000 €

  • 5 pièces
  • 3 chambres
  • Surface maison 120 m2

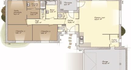
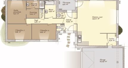
VENTE d'une maison T5 (120 m²) à Bouquetot
IDÉALEMENT SITUÉE - MAISON 5 PIÈCES NEUVE
En vente à 35 km de la Manche et à deux pas de Rouen, idéalement située dans Bouquetot (27310), nous vous présentons cette maison de 5 pièces de plain-pied de 120 m².
Son intérieur offre trois chambres, une cuisine et deux salles de bains. La maison est neuve.
Le terrain de la propriété est de 790 m².
Cette maison est située dans un quartier convoité. Une école primaire y est implantée. Niveau transports en commun, on trouve la gare Bourgtheroulde-Thuit-Hébert à moins de 10 minutes en voiture. L'autoroute A13 est accessible à 3 km. Il y a un tennis à quelques minutes.
Elle est proposée à l'achat pour 290 000 €.
N'hésitez pas à prendre contact avec Kamel BAZIZ (tél : 07-80-36-63-82) pour plus de renseignements sur la maison, sur les modalités de vente ou sur les démarches à suivre. Maisons Balency Boos vous accompagne dans tous vos projets immobiliers et à toutes les étapes de l'achat.

Annonce proposée par un Agent Commercial Partenaire.

Mentions légales

Terrain proposé par un partenaire foncier selon disponibilités et autorisation de publicité au prix de 69 000 €. Hors droit d'enregistrement et frais de notaire. Terrain + Maison proposés au prix de 221 000 € (Hors branchements et raccordements, papiers peints, peintures, revêtement de sol dans les chambres. Tarif modifiable sans préavis). Etiquette énergie : A. Différents modèles disponibles pour ce terrain. Assurances et garanties du constructeur (RC professionnelle, décennale, dommage ouvrage, garantie de remboursement de l'acompte, livraison à prix et délai convenu) : https://www.maisons-balency.fr/informations-legales/. HEXAOM Services est enregistré auprès de l'ORIAS en tant que Courtier en financement, Niveau 1, sous le numéro 14001345.

Contactez l'agence de Boos

02 35 80 66 66

    * Champs obligatoires

    Vos informations sont traitées par HEXAOM et transmises à un conseiller commercial qui vous contactera afin de répondre à votre demande. Les plans et images présentés sur notre site sont la propriété d’HEXAOM et ne peuvent pas être reproduits sans son accord. Pour retrouver notre politique de protection des données personnelles et exercer vos droits conformément à la « loi informatique et liberté » cliquez-ici.